Centre Sportif de Malley
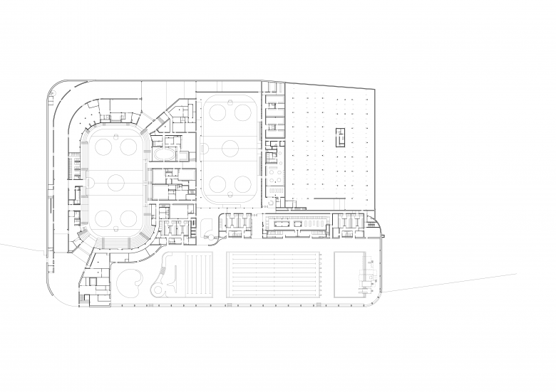
Son verre blanc évoque la glace, ses angles arrondis suivent la forme de la patinoire. A vol d’oiseau, son plan rappelle une canne de hockey : ce grand L libère ainsi un vaste parvis qui accède de plain-pied au déambulatoire de la patinoire, à mi-hauteur du gradin. L’aile sud du bâtiment reçoit le complexe aquatique dont le bassin pour enfants vient se glisser sous le gradin de la patinoire.La pente du terrain permet ainsi d’étager le programme : au rez inférieur, la piste de glace et le plan d’eau des piscines (avec accès logistiques, centrales techniques et parking) ; au rez supérieur, le niveau d’accès public depuis le parvis ; dans la charpente, les installations scéniques et la ventilation.
Le regroupement des activités sportives – patinoires, piscines escrime ettennis de table – est animé par un souci d’économie en mutualisant les accès, coûts d’exploitation et infrastructures (p.ex. chauffage de la piscine par chaleur résiduelle de la production de froid). La polyvalence est aussi privilégiée, notamment la patinoire convertible en grande salle de spectacle. Les installations sportives (locaux, distributions, sécurité, climat, éclairage, médias…) ont été conçues en détail avec les utilisateurs, en particulier pour optimiser les installations (froid et chauffage, ventilation, électricité…). Rationnel, le dessin des circulations séquence aussi le parcours en plaçant des accents comme le grand escalier circulaire ou les vues plongeantes sur la piste de glace. Les courbes illustrent les rayons de giration des véhicules, tandis que les concavités abritent les entrées.
Chaque programme bénéficie de vues généreuses, en particulier de terrasses orientées vers le lac pour le restaurant, les espace VIP et les clubs sportifs. Manifestant son rayonnement urbain par sa façade immaculée, la générosité de son parvis, ses parcours et vues à grande échelle, le centre sportif contribue à la création d’un nouveau paysage à Malley, au centre de l’agglomération lausannoise.
- Ano
- 2021
- Cliente
- Centre Sportif de Malley SA
- Ingénieur civil
- EDMS SA
- Ingénieur CVSE
- RAPP technique du bâtiment SA
- Ingénieur géotechnicien
- Karakas & Français SA
- Architecte paysagiste
- Pascal Heyraud architecte paysagiste
















