Ecoquartier
88 logements pour une coopérative d’habitation.
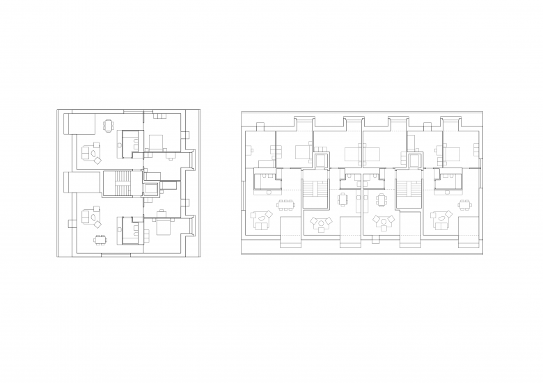
Ce quartier situé dans les hauts de Lausanne est conçu pour une coopérative participative d’habitation. Les immeubles sont disposés par groupes de trois autour d’un espace collectif qui concentre leurs entrées. Cet urbanisme, d’aspect souple et organique, crée une alternance d’espaces collectifs et publics. Accessible par la route du Jorat, le parking souterrain se situe au centre du quartier et libère l’intérieur du site qui est entièrement réservé à la mobilité douce. Les typologies offrent une souplesse aux logements (chambres polyvalentes). Quelques appartements collectifs (clusters) complètent l’offre. Les mouvements de terre et l’utilisation de béton armé (d’origine recyclée) sont réduits au strict minimum. La structure est composée de de murs massifs en bois, dalles mixtes et caissons préfabriqués en toiture avec remplissage en isolation. Ce procédé permet d’optimiser la consommation d’énergie grise et de raccourcir les temps de montage.
Satisfaisant les exigences Minergie-P-ECO, le projet apporte une réponse exhaustive aux trois axes du développement durable, écologie, économie et vie sociale, à tous niveaux et sur l’ensemble du processus, de la planification à la déconstruction.
- Ano
- 2020
- Project Status
- Built
- Cliente
- La Codha
- Ingénieur civil
- Kälin & Associés SA
- Ingénieur CVS
- Weinmann-Energies SA
- Ingénieur E
- Thorsen Sàrl
- Architecte paysagiste
- Pascal Heyraud










