Immeuble à Pully
7 logements en locatif
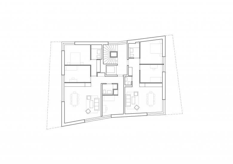
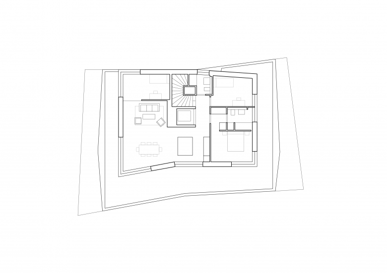
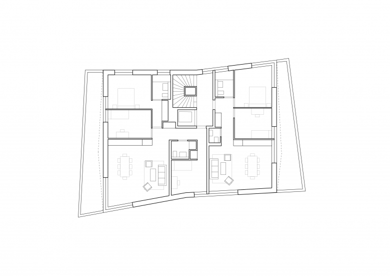
Sur une parcelle étroite, dans un quartier résidentiel de villas et de petits immeubles, le projet remplace une modeste maison. Exigu, merveilleusement ouvert sur le paysage, le site détermine le volume et l’organisation du bâtiment : son plan « en papillon » tire parti des contraintes réglementaires pour accueillir sept logements généreux tout en dégageant un jardin profondeur. Les appartements se répartissent par paires à chaque étage pour bénéficier individuellement d’orientation sur trois côtés, avec balcons. Mais un seul appartement occupe l’attique, dotant la propriétaire d’un dégagement panoramique idéal et d’une terrasse généreuse dominant le quartier.
Porteuses, les façades en béton apparent foncé se structurent en bandes superposées dont les hauteurs varient pour moduler les dimensions des fenêtres en fonction de l’usage domestique. Ces bandeaux en béton lisse soulignent chaque étage et contrastent avec la rugosité des jambages séparant les fenêtres, sablés pour révéler les agrégats et la matérialité du béton. La position alternée des fenêtres entre les différents niveaux vient tempérer la répétition du plan, dans le vœu d’offrir à chaque appartement et chaque pièce la meilleure vue possible. En hommage au contexte, le bâtiment reste sombre pour mettre en lumière la végétation colonisant ce coteau résidentiel.
- Ano
- 2017
- Project Status
- Built
- Cliente
- Privé
- Ingénieur civil
- Giacomini & Jolliet ingénieurs SA
- Ingénieur CV
- Rigot Rieben SA
- Architecte paysagiste
- Interval Paysage Sàrl







