Gesamtrenovation Mehrfamilienhaus

Foto © Felix Huber Architekten

Mehrfamilienhaus aus dem späten 19. Jahrhundert.
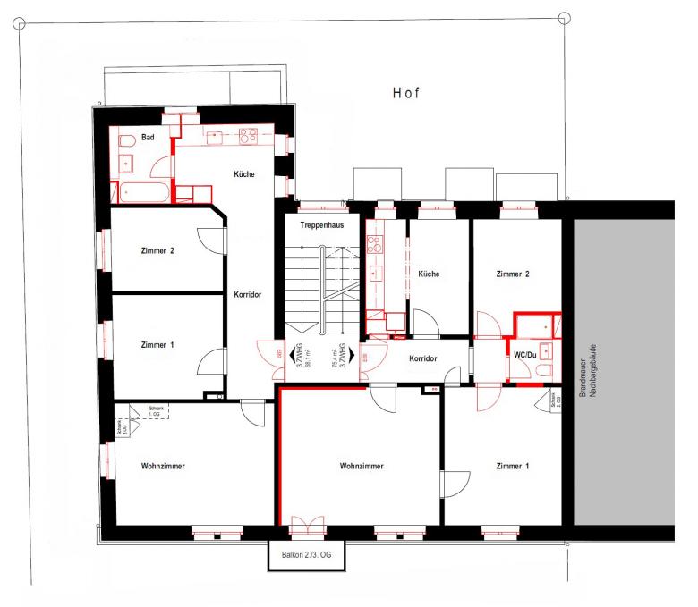
Gesamtrenovation mit Grundrissanpassungen.
Neues Dach in Naturschiefer und neuer Dachterrasse.
Energetische sowie brandschutztechnische Sanierung.

Foto © Felix Huber Architekten
Foto © Felix Huber Architekten
Foto © Felix Huber Architekten
Foto © Felix Huber Architekten
Año
2021

Otros proyectos de Felix Huber Architekten 

Mehrfamilienhaus Kirchgasse, Zustandsanalyse
Wohn- und Geschäftshaus
Zürich-Seefeld, Switzerland
ETH Zürich, Labor für Tierhaltung
Zürich, Switzerland
ETH Zürich, Forst- und Landwirtschaftsgebäude
Zürich, Switzerland
ETH Zürich, ehemaliges Chemiegebäude
Zürich, Switzerland