Mehrfamilienhaus Kirchgasse, Zustandsanalyse

Foto © Felix Huber Architekten

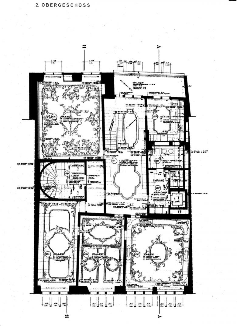
"Das mittelalterliche Zeilenhaus 'Zur Engelburg', wurde letztes Mal im Jahr 1978
umgebaut und sorgfälltig renoviert. Die Gebäudehülle ist in einem allgemein guten Zustand, jedoch verschmutzt. Dringenden Unterhalt bedürfen die Dachlukarnen, einige Fenster und Balkontüren, nebst diversen Malerarbeiten. Die Dachdeckung muss überprüft werden, der Dachstuhl ist in einwandfreiem Zustand. Die Kellermauern sind feucht und fachmännisch zu überholen.

Auszug aus der Analyse.

Foto © Felix Huber Architekten
Foto © Felix Huber Architekten
Cliente
Privera AG

Otros proyectos de Felix Huber Architekten 

Wohn- und Geschäftshaus
Zürich-Seefeld, Switzerland
ETH Zürich, Labor für Tierhaltung
Zürich, Switzerland
ETH Zürich, Forst- und Landwirtschaftsgebäude
Zürich, Switzerland
ETH Zürich, ehemaliges Chemiegebäude
Zürich, Switzerland
Geschäftshaus SCREEN
Urdorf, Switzerland