ETH Zürich, Forst- und Landwirtschaftsgebäude
Erbaut von Gustav Gull, als Erweiterung eines Institutsgebäudes von J.J. Müller und O. Weber. Im städtischen Inventar schützenswerter Gebäude.
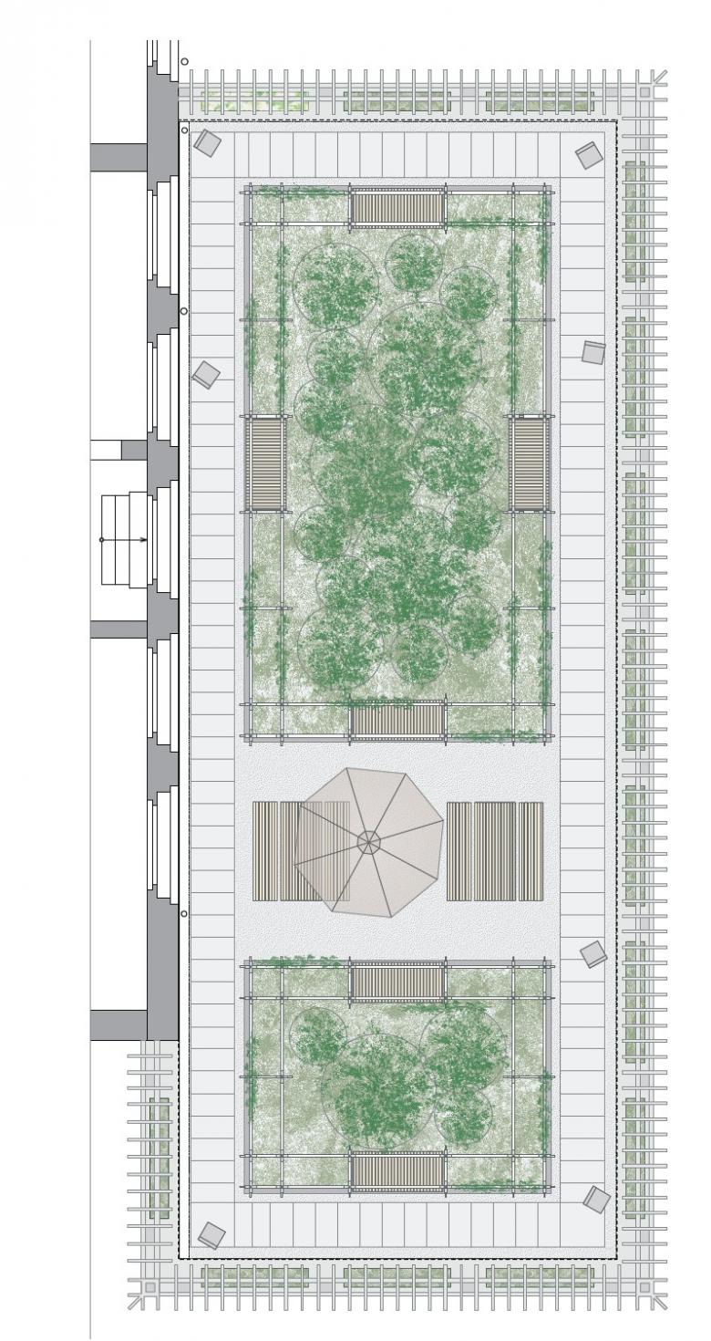
Renovation der Fassade und der Dachterrasse.
Reinigung und Reprofilierung des Kunst- und Natursteins,
Fensterertüchtigung oder -Ersatz mit Fensterfutter,
Absichtung und Neuaufbau der 100-jährigen Dachterrasse Süd.
Bauarbeit unter studentischem Betrieb und
unter Aufsicht der Denkmalpflege.
- Año
- 2017
- Landschaftsarchitektur
- Andreas Geser Landschaftsarchitekt, Zürich






