Bundesoberstufenrealgymnasium Neulengbach
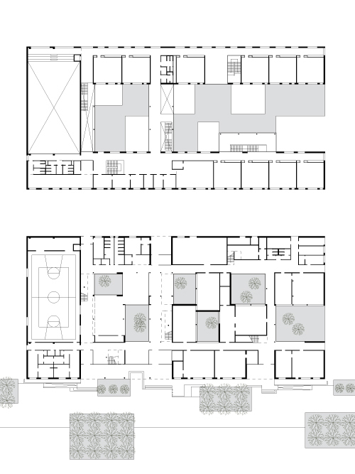
Ein zentrales Thema des Entwurfes der Schule ist das Verschmelzen von Innen- und Außenraum. Im Erdgeschoß bringen sechs kleine Innenhöfe Licht in die Sonderunterrichtsräume und Gänge. Im Obergeschoß gibt es zwei größere Innenhöfe, die von den Stammklassen umschlossen werden. Diese Höfe sind auf zwei Ebenen so miteinander verflochten, dass sie verschiedene Räume mit interessanten visuellen Verbindungen schaffen und zum Verweilen und Kommunizieren einladen. Jeder der Höfe ist mittels Pflanzen, Bodenmaterialien und Möbelierungen, je nach Funktion des angrenzenden Innenaums unterschiedlich gestaltet. So verfügt etwa der Hof neben dem Chemiesaal über einen Experimentiertisch für Versuche. Sämtliche Stammklassen sind nach Süden orientiert um eine optimale Belichtung zu erreichen. Diese Ausrichtung erweist sich zusätzlich als ideal, da der Lärm der Bahntrasse im Norden durch die interne Erschließung abgeschirmt wird. Die Form des Gebäudes, mit seiner flächigen Struktur leitet sich einerseits aus der grundsätzlichen Orientierung am Grundstück entsprechend dem städtebaulichen Konzept ab, das sich in Streifen parallel zum landschaftdominierenden Eisenbahn-Viadukt entwickelt und so einen direkten Bezug zum Umraum herstellt, andererseits aus der Idee ein möglichst energetisch kompaktes Volumen zu schaffen. Die Schüler gelangen bewusst von Süden kommend in die Schule um den gesamten Eingangsbereich zu einem öffentlichen Raum, eine sogenannte Esplanade, aufzuweiten. Dies geschieht mittels einer artifiziellen Landschaft aus Sitzmöglichkeiten, Bäumen und Bepflanzungen aller Art. Über diesen Vorplatz gelangen neben den Schülern auch externe Nutzer über einen separaten Eingang zum Turnsaal und Mehrzweckraum die flexibel mit dem Speisesaal und Foyer beliebig zusammen geschaltet werden können. Der Bau verfolgte von Anfang an ein ökologisches und nachhaltiges Grundkonzept. Eine kontrollierte Raumlüftung mit Wärmerückgewinnung sowie die Beheitzung mittels Erdwärme lässt die Schule in Kombination mit entsprechend dimensionierten Dämmstärken und aussenliegenden Sonnenschutz den Niedrigenergiestandard mit 13kW/Jahr m2 erreichen. Zusätlich wurde darauf geachtet nur ökologische Baustoffe zu verwenden. Somit geht die Schule nicht nur schonend mit den Ressourcen unserer Umwelt um, sondern hilft durch die hohe Energieeffizienz auch Betriebskosten sparen. Zusätzlich kann in der Schule durch das gewählte statische System eine flexiblere Adaptierung und Umnutzung für die Zukunft garantiert werden. Dies geschieht mittels zwölf Meter weit spannenden Betonfertigteilen, welche auf den aus Ortbeton hergestellten Außenwänden aufgelagert sind und somit die Verwendung von Trennwänden in Leichtbauweise anstatt gemauerter oder betonierter Wandscheiben erlauben.
Landschaftsarchitektur: idealice Landschaftsarchitektur
- 年份
- 2010
- Project Status
- 已建造








