KHS Machinery Plant
Ahmedabad, 印度
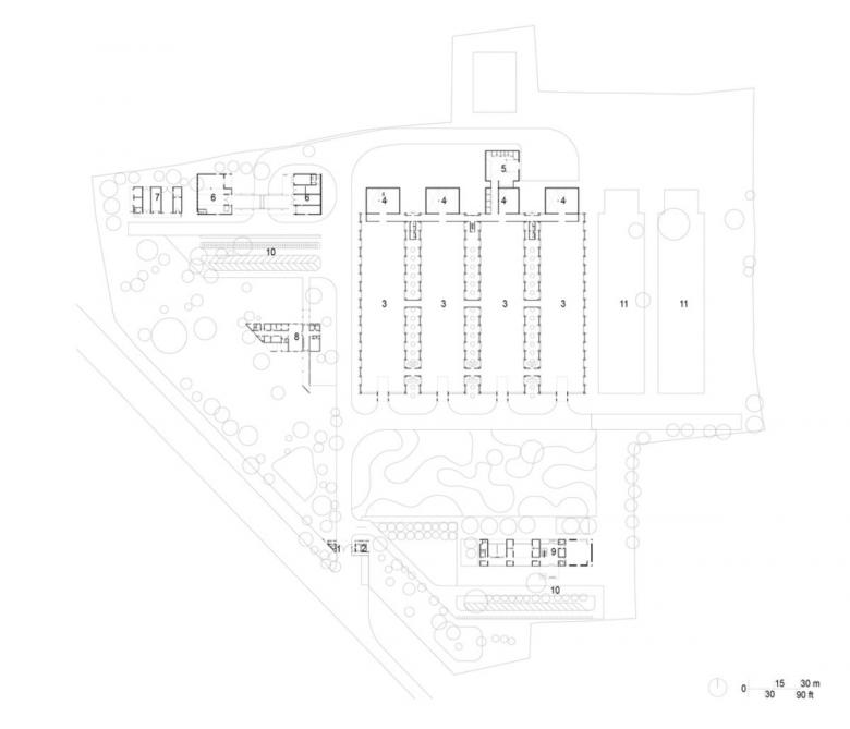
The KHS Machinery Plant (AMA) provides a built-up area of 18,750 sq. m.
The facility is notable for its inverted sheet roofing, clear span and length. This bottling production plant comprises four sheds aligned parallel to each other with the span of 27 m by 120 m. Its trusses, which span 26 m, are notable for the fact that they appear above the roof, not below it, in order to obtain a clean undersurface to the roof and avoid a false ceiling. A gantry with a capacity of 20 tons runs along the entire clear span to make the production area flexible. The plant’s facilities include production areas, utility blocks, and stores for raw material, canteens, paint shop, a training centre, administrative offices and change / toilet areas.
- 建筑师
- HCPDPM
- 年份
- 2009
相关项目
杂志
-
-
-
-
Un despatx madrileny signa un visionari catalitzador urbà en West Palm Beach
Andrea Pala | 29.11.2018 -
L'arquitectura de Francis Keré en escena en el Museu ICO de Madrid
Andrea Pala | 28.10.2018













