Entrepreneurship Development Institute
Bhat, 印度
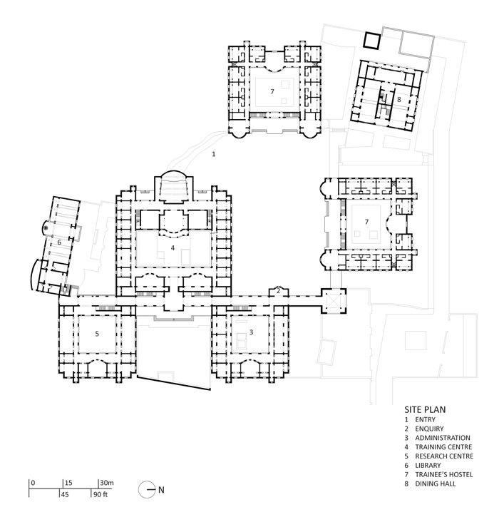
In this campus, courtyards are used as the structuring devices. The constituent seven buildings, each with a courtyard are organized along the two axes of the scheme.
Built over the area of 9210 sq. m., the Entrepreneurship Development Institute is an autonomous, not-for-profit institution, based on the idea that entrepreneurial talent need not be inherent but can be nurtured through innovative training.
The institute is devoted to provide specialized entrepreneurship education, training & research, consultancy services, quality teaching and training material to approximately 110 postgraduate students each year. Built in exposed brick, exposed concrete and steel, the design readily evokes a combined sense of modernity and tradition. The academic facilities include 4 classrooms, 4 seminar rooms, a 250- seat auditorium, a library, administrative facilities and a board room. Additional facilities include café, hostels and 10 dormitories; and faculty housing with 6 row houses and 6 flats.
The campus won the Aga Khan Award for Architecture in the year of 1992.
- 建筑师
- HCPDPM
- 年份
- 1986
相关项目
杂志
-
-
-
-
Un despatx madrileny signa un visionari catalitzador urbà en West Palm Beach
Andrea Pala | 29.11.2018 -
L'arquitectura de Francis Keré en escena en el Museu ICO de Madrid
Andrea Pala | 28.10.2018










