THE ROCK - Radisson RED Vienna
Austria
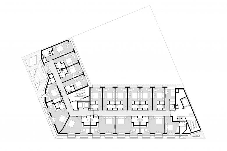
„THE ROCK“ beherbergt das erste Radisson RED Hotel in der deutschsprachigen Region, welches an einem städtebaulichen wie sozialen Knotenpunkt im zweiten Bezirk in Wien liegt. Das Raumprogramm des halb-öffentlichen Gebäudes umfasst 179 Zimmer, einen Veranstaltungsraum, eine öffentliche Rooftop-Bar mit Terrasse, einen Innenhof, ein Restaurant und ein Fitness-Studio.
Das Grundstück in prominenter Lage am Donaukanal mit Blick auf die Sehenswürdigkeiten der Wiener Altstadt erforderte besondere gestalterische Sorgfalt. Das skulpturale, monolithisch architektonische Konzept, das die historische Blockrandbebauung weiterführt, ist mit seiner charakteristischen Form identitätsstiftend. Die Architektur lebt von der Spannung zwischen dem regelmäßigen Fensterraster und der tektonischen Faltung der Fassade. Diese ist aus den Anforderungen der Bauordnung generiert und fördert die visuelle Interaktion des Gebäudes mit der Umgebung. Dieses Zusammenspiel wird durch die fast physische Verbindung mit der U-Bahnstation Schottenring, deren Eingang direkt vor dem Hotel ist, nochmals unterstrichen. Das transparente Erdgeschoss gewährt, von der Straße aus, Einblicke in die Lobby sowie in den Innenhof und unterstreicht zusätzlich die öffentliche Natur und die soziale Intention des Gebäudes. Dieses Konzept wird vom Innenhof bis hinauf zur Dachterrasse und dessen angrenzenden Garten weitergeführt. Ein 24 Meter hohe Graffiti im Innenhof fungiert als visueller Anker und überträgt die Urbanität der Nachbarschaft ins Innere. Die örtliche Kontextualisierung wird durch die Oberflächen und Materialien weiter kultiviert und verbindet diese mit der Radisson Design-Guideline und den von der Hotelgruppe kuratierten Möbelauswahl.
Drei miteinander verbundene Glashäuser auf der öffentlich zugänglichen Dachterrasse, die auf einer spiegelnden, entmaterialisierten Platte über dem Gebäude schweben, vermitteln durch die entstehende differenzierte Höhenentwicklung des Gebäudes zwischen den unterschiedlichen Gebäudehöhen der direkt angrenzenden Nachbargebäude. Gleichzeitig kontrastiert die Glashaus-Typologie mit dem darunterliegenden großen Gebäudevolumen und tritt in Dialog mit den umliegenden Straßen und dem vorbeifließenden Donaukanal.
Diese architektonische Haltung überträgt sich auch in die Gestaltung des Dachgeschosseses, wo sich eine leichte, schwebende Textildecke sich zeltartig über der Skybar aufspannt und dadurch die Grenzen zwischen Innen und Außen verwischt. Die rautenförmige Aluminium-Fassadenverkleidung, die das Gebäude nahtlos überzieht, vereint Wand und Dach zu einem homogenen Volumen, das die uniforme, gesteinsartige Anmutung akzentuiert. Die präzise Faltung der Metallfassade über die vertikalen Gebäudekanten trägt wesentlich zum Gesamteindruck des Gebäudes bei und unterstreicht das Gestaltungskonzept.
Durchbrochen wird die strukturierte Gebäudehaut nur von den gold-bronze verspiegelten Fenstern mit integriertem Sonnenschutz, die reliefartig aus der Fassade hervorstehen. Im Inneren sind diese zur Sitzbank ausgeformt, den sogenannten “Living Windows“ und laden zum Betrachten der umstehenden Umgebung mit der belebten Uferpromenade ein. Auf diese Weise unterstützen die Hotelfenster die Interaktion mit der Außenwelt und den offenen Charakter des Gebäudes.
- Architetti
- INNOCAD
- Anno
- 2022
- Cliente
- Immovate Realita GmbH
Progetti collegati
Rivista
-
-
-
-
Un despatx madrileny signa un visionari catalitzador urbà en West Palm Beach
Andrea Pala | 29.11.2018 -
L'arquitectura de Francis Keré en escena en el Museu ICO de Madrid
Andrea Pala | 28.10.2018






























