Abdul Latif Jameel Investments
Jeddah, Saudi Arabia
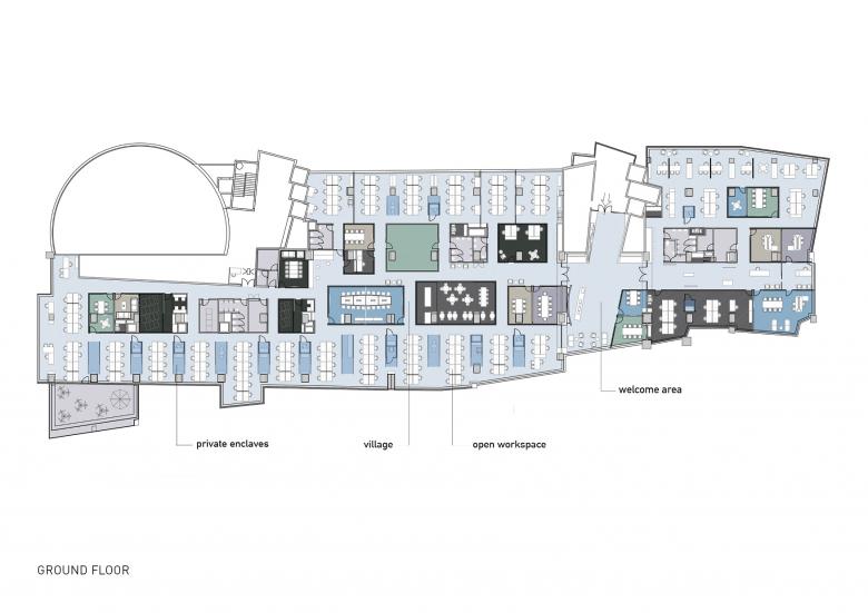
Hauptsitz von Abdul Latif Jameel Investments
Die Innenarchitektur und Raumplanung für das neue Büro von Abdul Latif Jameel Investments in Jeddah, KSA, folgt den Branding-Richtlinien des Unternehmens. Die Mitarbeiterbereiche unterstreichen die Markenwerte des Unternehmens durch eine Gestaltung, die Transparenz und atmosphärische Qualität betont.
Das Bürokonzept besteht aus drei Hauptkomponenten: „the welcome area“, „the village“ und „the open workspace“. Der Welcome-Bereich verfügt über ein individuelles Display mit Corporate Graphics zur Geschichte des Unternehmens und bietet einen Empfangsbereich, eine Wartelounge, eine Vitrine und einen Kundenbesprechungsraum.
Das Dorf befindet sich in der Mitte des Raums, während alle Arbeitsplätze zu Fenstern hin ausgerichtet sind. Es ist das infrastrukturelle Rückgrat des Büros und die Hauptbewegungsfläche.
Eine Vielzahl von einzelnen, farbigen Glaskuben schaffen eine dörfliche Struktur, die Kommunikation und Interaktion ermöglicht und verbessert und gleichzeitig andere private Bereiche abgrenzt. Das Dorf beherbergt Tagungsräume, Gebetsräume, eine Cafeteria, einen Spielplatz, offene Versammlungen und andere Serviceeinrichtungen.
Der offene Arbeitsbereich befindet sich auf beiden Seiten der Fenster und ist mit privaten Enklaven strukturiert, die den offenen Arbeitsplatz zonieren und den Menschen einen vielseitigen Raum bieten, der als Telefonzelle, Medienkiosk, Rückzugsort oder informelles Treffen genutzt werden kann. Ein grafisches Leitsystem, das auf bewegliche Bildschirme gedruckt ist, zeigt die verschiedenen Funktionen der Enklaven und sorgt für Privatsphäre.
- Architetti
- INNOCAD
- Anno
- 2016
- Cliente
- Abdul Latif Jameel Investment
Progetti collegati
Rivista
-
-
-
-
Un despatx madrileny signa un visionari catalitzador urbà en West Palm Beach
Andrea Pala | 29.11.2018 -
L'arquitectura de Francis Keré en escena en el Museu ICO de Madrid
Andrea Pala | 28.10.2018
















