AL's Place
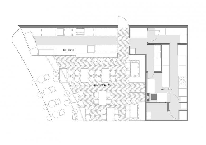
An elegant boutique restaurant, situated on the 4th Floor of K11 in the heart of Shanghai, offers visitors an open dining area with a variety of spaces from spacious meeting zones to cosy dining corners.
AL's Place, designed by dongqi Architects, creates a versatile space shaped through a spatial composition of 6mm thin steel structure, maintaining a consistent design vocabulary while scaffolding different seating variations from dining tables to high seating, and elegant bar areas.
The architects gave careful thought and consideration to the selection of the structural component. After a trial of different prototypes, an elegant curve was finally chosen to shape the atmosphere of the restaurant; this design language runs consistently through the entire space, from the lighting structure above to the refined footrest of the bar, forming a vertical mirroring between all elements.
Known for their meticulous attention to detailing, the architects ensured that all metal components are pre-fabricated, and are interconnected between one another through riveting, thus creating dialogue with the embedded elements on site.
The bar as the central element is composed of a single piece of in-situ cast and polished terrazzo, connected to a bronze wire mesh. The curved structural element is attached vertically to the steel construction embedded in the stone, thus functioning as a multipurpose lightweight structure that stretches upwards to the top of the bar for display, storage, and lighting.
Likewise, the high table is supported by an equally delicate structure, combined with the central lighting fixtures to create a wholesome aesthetic while again maintaining the consistency of the curve. Simultaneously, the curvature above the bar plays along to construct an arched opening; framing a welcoming entrance for the visitors while enhancing the efficiency of the dining area.
Last but not least, all areas are illuminated at varying levels by delicate light spheres, orchestrated through hanging at different heights from the same steel structure above, and becomes the highlight detail of the space.
Project Name: AL's Place
Architect Firm: dongqi Architects
Design:2017.8
Completion: 2018.1
Area: around 100 ㎡
Photography: Raitt Liu
- Année
- 2018
- Équipe
- JIANG Nan, Yiting Ma, Dan Yu, Tianqing Wang, Connie Zhao,, Wenyi Han

















