IMV
IMV digital products retail store designed by dongqi Architects is located on the first floor, Hangzhou Raffles City. By creating unique space and lighting environment, architects provide good visual identity of its electronic products.
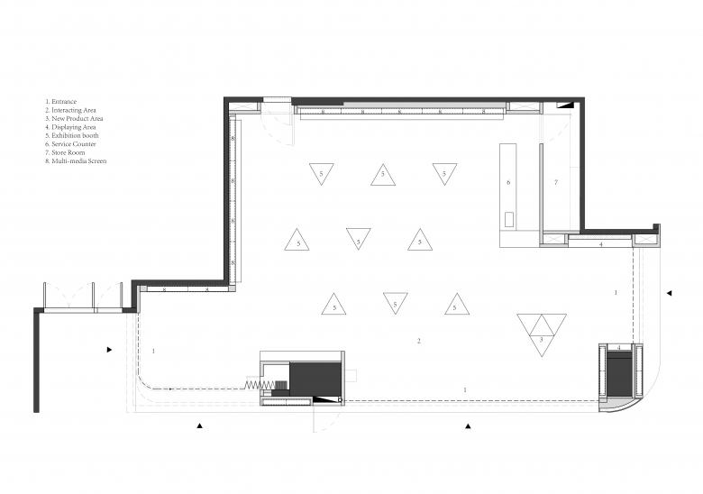
The space have been divided into two parts, which are the interacting area and displaying area. In order to attract customers and emphasis the openness of the store, the outside of the space closed to the main circulation has been distributed into the displaying area, mainly for those interacting products. The inside of the space is filled with triangle exhibition booth that connect different circulation. It allows customers to experience both space and products freely.
In terms of the exhibition booth design, acrylic has been considered by designers. About 52 acrylic pipes together with several pieces of acrylic plates creates a full height triangular pyramid illuminant. The partial light among different exhibition booth shows the special and free distribution of the space and circulation. It reflects the concept of the information technology and data flow.
The head of elevation inclines towards interior space and use laser perforated steel plate as material. The pattern is generated by the informational technology and the blue light can penetrate through the perforated steel plate, which is a good way to strengthen the theme of the technology.
The stainless steel of all the counter including service counter and the displaying wall counter has been processed specially, which can increase the refraction among different steel. As a result, the counter has been perfectly hidden and the lighting acrylic jump into the sight of the customers. Such a design blur the boundary of and increase the depth of the space.
The multi-media screen is combined with the column and wall, which can possibly promote the advertisement of the products by its multi-directional exhibition. Meanwhile, as an essential part of the space, the screen is not only provide another variety displaying method, but also enhance the technology atmosphere of the space.
Project Name: IMV
Architect Firm: dongqi Architects
Team: JIANG Nan, Jinfan Xie, Jianglin Qian
Completion: 2018.03
Area: Around 122 ㎡
Photography: Raitt Liu
- Année
- 2018
- Project Status
- Construit
- Équipe
- JIANG Nan, Jinfan Xie, Jianglin Qian













