Künzlistrasse Zürich
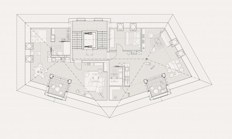
An der Künzlistrasse in Zürich planen wir ein Mehrfamilienhaus mit attraktiven Kleinwohnungen. Wir konnten dank dem modellierten Gebäudevolumen die herausfordernde Parzellengeometrie optimal ausnutzen. Durch das Schrägdach, die dezente Farbgebung und die feine Gestaltung der Fassade fügt sich der Neubau selbstverständlich in den Kontext der Quartierstrasse ein. Die 29 Kleinwohnungen verfügen dank den Französischen Fenstern und einem grosszügigen Balkon über viel Tageslicht und einen starken Aussenraumbezug. Die Wohnungen verfügen trotz dem kompakten Grundriss über ein grosszügiges Raumgefühl, da wir mit dem Raumtrenner aus Glas und Stahl ein verbindendes und identitätsstiftendes Element erschufen.
- Year
- 2024
- Client
- STAHLER. Group AG
- Team
- Mit Marti + Dietschweiler AG (Statik), reu gmbh (HLS), Marquart Elektroplanung + Beratung AG (Elektro), und Gartenmann Engineering AG (Bauphysik und Brandschutz).








