Dorfstrasse Zürich
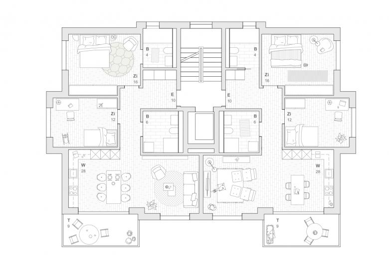
Für die Parzelle an der Dorfstrasse in Zürich folgen wir mit unserem Ersatzneubau der bestehenden städtebaulichen Setzung und führen so die Siedlungsstruktur fort. Die beiden Gebäude wirken auf den ersten Blick identisch, aber sie reagieren mit gezielten Massnahmen auf ihre unterschiedlichen Situationen. So ändert sich etwa die Lage des Attikageschosses und durch differenzierte Fenstersetzungen werden unterschiedliche Ausblicke in Szene gesetzt und gleichzeitig Privatsphäre ermöglicht. Die flexible und intelligente Typologie der Häuser lässt verschiedene Wohnungsgrössen und -typen mit der gleichen Grundstruktur zu.
Mit unserem Ansatz konnten wir den Wettbewerb für uns entscheiden.
- Year
- Wettbewerb I 1. Rang
- Client
- Credit Suisse Asset Management (Schweiz) AG





