Haus P

Reutlingen, Germany
Photo © Brigida González

Neubau eines Einfamilienhauses in Massivbauweise. Die Gebäudestruktur sollte sich an eine sich verändernde Familienstruktur anpassen können.

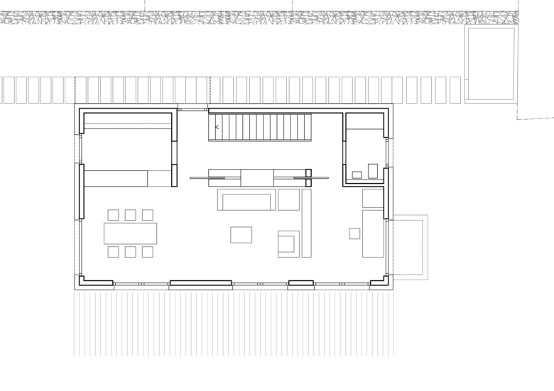
Im Erdgeschoß wurden im Norden der Zugangsbereich mit Treppe, ein WC mit Putzschrank und die Küche angeordnet. Der südliche Gebäudeteil wurde ohne tragende Wände oder Stützen geplant und wird als flexibler Wohn- und Eßbereich genutzt.

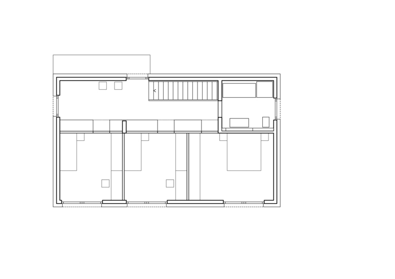
Im Obergeschoß wurde der Flur als zusätzliches Zimmer für die Kinder in Form eines Spielflures ausgebildet. Vom Flur aus zugängliche Schrankwände bilden den Raumteiler zu den angrenzenden Kinderzimmern und dem Eltern – Schlafzimmer.

Alle Zimmerwände im Obergeschoss wurden in nichttragender Trockenbauweise hergestellt. Sie können nachträglich verändert oder entfernt werden.

Bauherr
Privat

Ausführung
09 / 2007 – 07 / 2008

BGF
257 m²

BRI
753 m³

Baukosten
340.000 € brutto

Fotografie
Brigida González

Photo © Brigida González
Photo © Brigida González
Photo © Brigida González
Photo © Brigida González
Photo © Brigida González
Photo © Brigida González
Photo © Brigida González
Photo © Brigida González
Grundriss EG
Drawing © SFA
Grundriss OG
Drawing © SFA
Project Status
Design

Other Projects by SFA Simon Freie Architekten BDA 

Kultur und Veranstaltungshaus
Weikersheim
Foyer und Audimax Universität Stuttgart
Stuttgart, Germany
Lofthaus Bad-Cannstatt
Stuttgart, Germany
Betriebshof und Städtebauliche Neuordnung Wingertsbuckel
Mannheim
Kulturzentrum Uhingen
Uhingen, Germany