Lofthaus Bad-Cannstatt
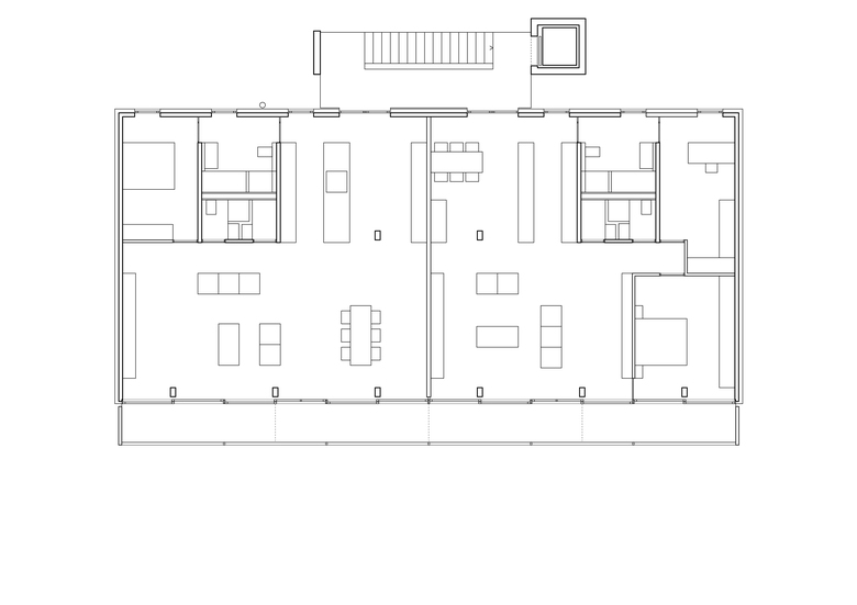
Das Lofthaus liegt in bevorzugter Aussichtslage an einem Südhang in Stuttgart Bad - Cannstatt. Als Zielgruppe für die Bewohner des Gebäudes wurden hochmobile kleine Familien, Singles oder die immer größer werdende Gruppe der ‚Jungen Alten' definiert. Innerhalb der offenen Grundrissfläche wurden im nördlichen Bereich kubische Service-Zellen eingestellt, die alle notwendigen Installationen beinhalten. Hier sind die nicht veränderbaren, höher installierten Räume wie Bad und WC vorgesehen. Die Küche kann an diese Zelle angelagert werden. Durch die Lage der Service-Zelle ist die Nutzung der nördlichen Grundrissfläche weitgehend für die Bereiche Schlafen, Kochen, Essen und Eingang definiert und gezont.
Der nach Süden orientierte Wohnbereich ist dagegen völlig flexibel und kann als Einraum belassen oder durch Trennwände in einzelne Räume unterteilt werden. Auf diese Weise sind vom Loft-Typ bis zur Wohnung mit fünf Räumen alle Grundrisstypen herstellbar. Vor der Südfassade werden in den Obergeschossen durchlaufend 1,5 Meter tiefe Balkone zur Erweiterung der Wohnfläche nach außen und als passive Schutzmaßnahme gegen hoch stehende Sonnenstände im Sommer angeordnet. Das Erdgeschoß erhält durch eine vorgelagerte Terrasse einen großzügigen Außenbezug. Das Angebot für die Mieter wird durch den Aufzug, die Tiefgarage, eine Dachterrasse und extern erbrachte Dienstleistungen vervollständigt.
Auftraggeber
nowmarketing München
Andreas Schweickhardt
Planungs- und Bauzeit
2004 - 2007
BGF
1.325 m²
BRI
3.938 m³
Baukosten
1.200.000 €
Tragwerksplanung
Michael Fleck, Schorzberg
Haustechnik
Wilhelm Schetter GmbH
Kernen
Elektroplanung
Truckenmüller & Partner
Stuttgart







