Volks- und Mittelschule Eichgraben
Wir machen Schule
Die in den Fünfzigern eröffnete Volks- und Mittelschule im niederösterreichischen Eichgraben wurde aufgrund des Zuzugs zu klein. Die Gemeinde tat zunächst das, was Gemeinden meistens tun: Sie beauftragten einen lokalen Baumeister, einen Zubau daranzupappen, mit Styroporfassade und einfallslosem Grundriss. Die Verantwortlichen, allen voran der Bürgermeister, waren aber unzufrieden mit diesem Plan und leisteten sich eine Nachdenkpause. Schule, so dämmerte allen Parteien im Ort, kann mehr sein, als ein am Nachmittag abgesperrtes Klassenzimmer. Sie kann ein kommunales Zentrum sein.
Die Gemeinderäte reisten durch Österreich, besuchten die besten Schulen des Landes, sie veranstalteten Informationsabende, banden die LehrerInnen, Eltern und Bevölkerung in abendlichen Diskussionen ein. Dann schrieben sie den Neubau der Schule aus, und wir konnten mit unserem Entwurf überzeugen.
Offen für alle
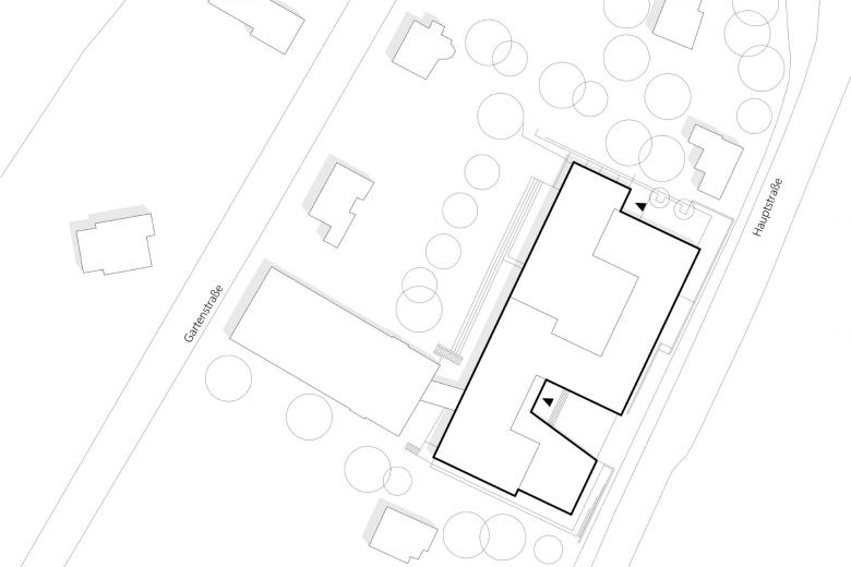
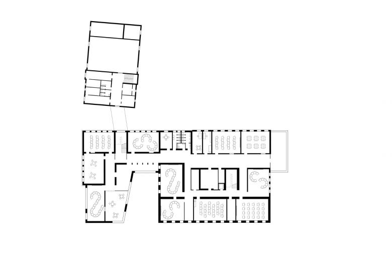
Unser Zubau aus Holz und Glas schafft Platz für zusätzliche Klassen und Gemeinschaftsräume, vor allem aber ermöglicht der Grundriss, dass ein Vorplatz zwischen Bestand und Neubau entsteht. Eine sichtbare Öffnung zum Ort und zur Hauptstraße mit einem repräsentativen Eingang für die NMS.
Auf der Hofseite fügen wir eine große Aula hinzu, die zum Beispiel als Veranstaltungssaal genutzt werden kann. Außerhalb der Schulzeiten bereichert der Raum als Übungsort für Orchester, Chöre und Vereine das Angebot der Gemeinde.
Erweiterte Spiel- und Lernräume
Wo vorher noch Strukturen wie in Gangschulen aus Maria Theresias Zeiten herrschten, bringen wir mit neuen Klassengrundrissen und Fensternischen Licht und Transparenz in die Bildungsräume. Eine Dachterrasse und ein neu gestalteter Garten mit Außenklassen bieten vielfältige und großzügige Flächen zum Spielen, Lernen und Ausruhen.
Mit der Erweiterung und dem Umbau der Schulen in Eichgraben haben wir den Schulbau nicht neu erfunden. Was uns aber wichtiger ist: die LehrerInnen, SchülerInnen und Eltern gehen gern in ihre erneuerte, moderne Schule. Und die Gemeinde ist am Gesamtprozess gewachsen.
- Year
- 2019
- Project Status
- Built
- Client
- Marktgemeinde Eichgraben
- Team
- Lucie Vencelidesová (PL), Anna Ladurner (PL), Eva Fischer, Nadine Hoffmann, Joshua Meighörner, Claude Probst, David Huber, Alexandra Flanjak










