Bildungscampus Puntigam - Volksschule
Die Volksschule in Puntigam, dem am schnellsten wachsenden Grazer Bezirk, war dem steigenden Bedarf an Klassen und gemeinschaftlichen Räumen längst nicht mehr gewachsen – ganze 20 Volksschulklassen und eine Ganztagesbetreuung für 500 SchülerInnen wurden benötigt. Die neue Clusterschule gestaltet sich hell und offen, mit den für einen Bildungsbau ungewöhnlichen Materialien wie Ziegel, Lehm und Hanf haben wir uns für einen Lowtech-Ansatz entschieden, der Langlebigkeit verspricht.
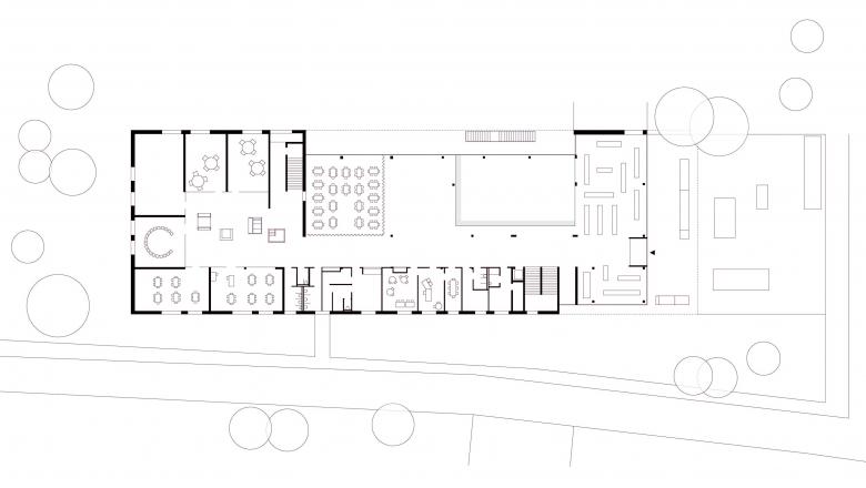
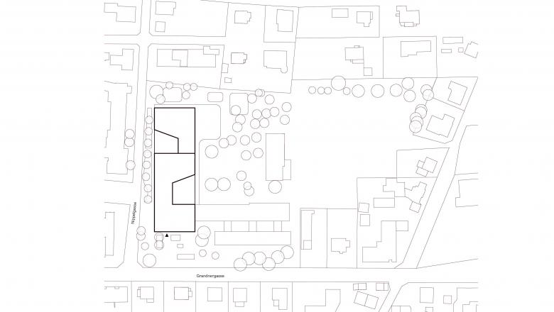
Alles neu – Der verwinkelte, pavillonartige Volksschulbestand hatte ausgedient. Um einen einladenden Eingangsbereich zu schaffen und durch ein kompaktes Gebäude mehr Platz für einen großen Schulgarten zu erlangen, haben wir diesen durch einen dreigeschoßigen Neubau ersetzt. So ist ein zeitgemäßer kooperativer Bildungscampus mit viel Raum für Bildung, Bewegung und Freizeit entstanden.
Den Ankunftsbereich an der Ecke Gradnerstraße/Nippelgasse bauten wir zu einem repräsentativen Vorplatz aus, um der gemeinsamen Schuladresse von Volksschule und zukünftiger Neuer Mittelschule ein Gesicht zu geben. Die Auskragung in Ziegelbauweise benötigte Stützen, die wir mit Holz verkleideten und die heute als überdachte Sitznischen dienen, in denen die Kinder Platz nehmen können.
So weit das Auge reicht – Vom Vorplatz kommend gelangen die SchülerInnen in die offene Zentralgarderobe, einem zweigeschoßigen Luftraum, von dem man bis ans hintere Ende des Gebäudes sieht. Anschließend öffnet sich ein großzügiger Raumverbund aus Aula und Speisesaal, der wiederum an den Schulhof anknüpft. Aula und Speisesaal sind nur durch einen mobilen Vorhang voneinander getrennt, bei Veranstaltungen kann auf diese Weise eine große, offene Halle mit Bühnensituationen entstehen. Auch der Turnsaal mit Fensterfronten ins Grüne ist in dieses Gefüge eingebettet, so blicken die Kinder beim Turnen ins Grüne, ein Oberlicht sorgt für zusätzliches Tageslicht.
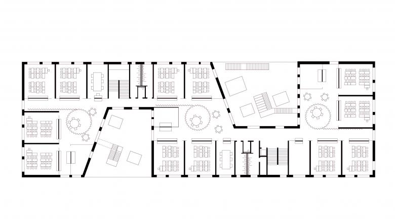
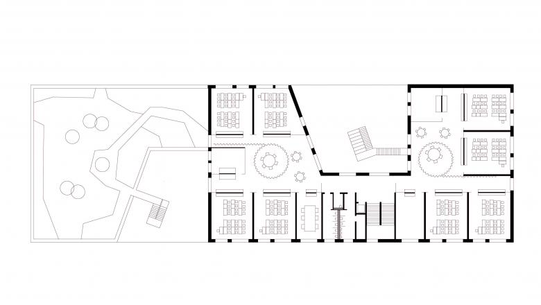
Flexibler Bildungsraum – Die insgesamt fünf Volksschulcluster mit je vier Klassen sind so angeordnet, dass jeweils ein direkter Zugang zu einer Terrasse besteht. Mittig sind die offenen Lernlandschaften angesiedelt, die mit verspielten Möbeln wie Wohnzimmer konzipiert sind. Sie verbinden die Klassen als multifunktionale Gemeinschaftsbereiche und lassen viel Tageslicht ins gesamte Gebäude. Durch einen Vorhang kann auch dieser Bereich für die individuelle Nutzung angepasst werden, etwa für ruhige Lernphasen oder konzentrierte Gruppenarbeit. Zusätzlich gibt es einen Arbeitsraum für Kleingruppen und einen Raum für die Lehrkräfte.
Bunte Lernwelt – Die Klassen selbst halten sich in ihrer Materialität zurück. Lehmverputzte Wände treffen auf große Fensterfronten und Stoffpinnwände, ein buntes Band aus Pinnwandtafeln verleiht Farbigkeit.
Damit es nicht langweilig wird – Nach dem regulären Unterricht können die SchülerInnen in die Ganztagesschule wechseln, die aus Räumen zum Werken, Musizieren, Bewegen und für weitere Freizeitbeschäftigungen bestehen. Um zusätzliche Möglichkeiten zum Spielen, für Rückzug, aber auch für Stauraum zu gewinnen, haben wir die Mitte der Ganztagesschule mit Holzboxen bespielt. Hier finden sich etwa die Bücherregale, begehbarer Stauraumbox oder Rückzugsnischen mit Vorhängen, ein Tunnel oder eine Burg.
Grüner Freiraum – Der vorher zerstückelte Innenhof wird nun zum grünen Paradies für Groß und Klein. Besonders für die Ganztagsbetreuung ist es wertvoll, unterschiedliche und weitläufige Freiräume zu haben – zum Pausieren, Entspannen, Spielen, aber auch zur sportlichen Betätigung oder zum Lernen im Freien. Auf den Terrassen, die jedem Cluster zugeordnet sind, befinden sich etwa Sitztreppen für Unterricht im Freien, Rückzugsmöglichkeiten oder auch eine zum Spielturm umfunktionierte Fluchtstiege – in Summe ein qualitätsvoller Aufenthaltsort für die SchülerInnen. Auf der knapp 1.500 m2 großen Dachterrasse findet ein intensiv begrünter Forschergarten mit Sträuchern, Hochbeeten und einem Insektenhotel Platz – ein Rundgang führt die Kinder entlang der Stationen.
Langlebig soll es sein – Nachhaltig und gleichzeitig einfach, mit natürlichen Materialien bauen war unser Anspruch bei diesem Schulprojekt. Deshalb kamen zur Ausfachung der Außenwände 50 cm starke Hochlochziegel zum Einsatz, die wir innen mit Lehmputz und außen nur mit 3 cm dicken Hanfplatten bedeckten. Diese sorgen für ökologischen Wärme-, Hitze- und Schallschutz und sie ersetzen die klassische Styropor-Wärmedämmung. Die Putzfassade in den eingeschnittenen Terrassen/Höfen weist eine vorgehängte Holzfassade auf, an der Kletterpflanzen hinaufwachsen. Im Inneren entsteht durch den Lehmputz zusätzlich ein besonders wohliges Raumklima für die zukünftigen Schülerinnen und Schüler. Dieser Einsatz von Bauprodukten mit geringer Herstellungsenergie, guter Auswirkung auf die Raumluftqualität und hervorragendem Entsorgungspotenzial verbessert die CO2-Bilanz des Gebäudes.
Lehm und Lowtech – In den Innenräumen dominiert der Werkstoff Holz, etwa die Holzlamellendecke aus Fichte, der Eichenparkett in den Obergeschoßen oder die Holzverkleidungen an den Turnsaalwänden. Als Kontrast dazu stehen die Stiegenhauskerne in Sichtbeton-Optik, die sich schlicht in das Raumgefüge einordnen. Mit einem Heiz- und Kühlsystem über Tiefbrunnen und Fotovoltaikanlage wird erneuerbare Energie ohne Verbrennungsprozesse gewonnen. Die automatisierte Fensterspaltlüftung, Grüninseln und zusätzliche Bäume wirken gegen Überhitzung und helfen, Wasser zurückzuhalten. Zusätzlich wird mit Baustoffen aus erneuerbaren Rohstoffen graue Energie gespart und Schad- und Störstoffe vermieden. Baustoffe wie Lehm und Holz sorgen für gutes Raumklima und letztendlich eine einfache Entsorgung. Unter dem Estrich haben wir lehmummantelte Holzspäne sowie Holzweichfaserplatten eingesetzt. Eine durch und durch nachhaltige Konstruktion, die vielen Generationen an Kindern Freude beim Lernen bereiten wird.
- Year
- 2022
- Project Status
- Built
- Client
- Bundesimmobiliengesellschaft m.b.H.
- Team
- Martino Libisch (PL), Silvia Mládenková, Tomasz Przybyła, Thomas Huck, Liča Anić, Philip Bato, Claude Probst
- Statik
- Petz ZT-GmbH
- Bauphysik
- Pilz & Partner Ziviltechniker GmbH
- HKLS
- Lauer-Pelzl-Stadlhofer
- EL
- Ogrisek und Knopper
- Landschaftsplanung
- EGKK Landschaftsarchitektur
- Brandschutzplanung
- Norbert Rabl Ziviltechniker GmbH













