Stadtelefant an der Bloch-Bauer-Promenade
From Architects with Love – Wir lieben es, ungewohnte Pfade zu beschreiten. Das gemeinsame Arbeiten auf Augenhöhe und der intensive Wissensaustausch mit anderen ist - davon sind wir überzeugt - für alle ein Gewinn. Wir leben das bei Franz&Sue, im fight club und in unserer ehrenamtlichen Arbeit in diversen Architekturinstitutionen. Schon heute entstehen mehrere unserer Projekte in büroübergreifenden Arbeitsgemeinschaften. Deswegen haben wir gemeinsam mit FreundInnen und KollegInnen ein Herzensprojekt nahe des Helmut Zilk Parks realisiert: Stadtelefant.
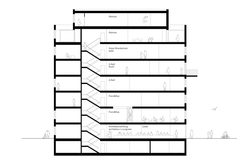
Ein Kreativcluster im Sonnwendviertel, einem der spannendsten Neubaugebiete Wiens, mit einem öffentlichen Lokal und gemeinsamen Veranstaltungsräumen. Für Diskussionen, zur Vernetzung und für büroübergreifende Projekte.
Starke Partner – Miteinander ist man stärker und lebt unbeschwerter, lautet unser Motto. Unser Bürogebäude direkt am Wiener Hauptbahnhof haben wir aus diesem Grund als GmbH entwickelt, geplant, finanziert und errichtet. Dazu gehören die befreundeten Wiener Architekturbüros SOLID und PLOV sowie die branchennahen Unternehmen A-NULL Bausoftware und Hoyer Brandschutz.
Die Architekturstiftung Österreich und der Verein architektur in progress arbeiten als Mieter im Co-Working space. Mit einem gemeinsamen Programm beleben wir das Erdgeschoss. Im sechsten Stockwerk findet man das neue Büro von Statik Petz.
Treffpunkt Erdgeschoss – Wir legen großen Wert auf Kommunikation, ohne sie, denken wir, ist gute Arbeit und vor allem ein gutes Leben nicht möglich. Bei Franz&Sue wird seit jeher jeden Tag frisch für die MitarbeiterInnen gekocht. Eine perfekte Gelegenheit zusammenzukommen, zu diskutieren und zu feiern.
Im Stadtelefant haben wir uns dafür 100 m² im Erdgeschoss freigehalten. Das öffentliche Lokal wird von Barbara Chira (Mittagstisch) und Tobias Radinger (das phil, kaffeeküche) betrieben und tagsüber auch als hauseigene Kantine genutzt. Dieser Gemeinschaftsort funktioniert als Raum für Diskussionen, informelle Meetings oder Events und lädt BewohnerInnen, Angestellte des Grätzls und bei Veranstaltungen auch die Wiener Architekturszene ein, „bei uns“ Gast zu sein und einzukehren.
- Year
- 2018
- Project Status
- Built
- Client
- Bloch-Bauer-Promenade 23 Real GmbH
- Team
- Joseph Suntinger (PL), Karin Hackl, Philipp Stromer, Wolfgang Fischer, Carla Kuhn, Simon Frey, Caro Berger, Norbert Peller, Jonathan Hering, Ajdin Vukovic
- Statik
- petz zt-gmbh
- Bauphysik
- Schöberl & Pöll GmbH
- Gebäudetechnik
- BPS Engineering
- Brandschutzplanung
- Hoyer Brandschutz GmbH
- ÖBA
- A Quadrat ZT GmbH
- Andreas Buchberger
- Fotografie














