Konrad-Lorenz-Gymnasium in Gänserndorf

Gärtnergasse 5-7, Gänserndorf, Austria
Video © Franz&Sue
Photo © EMILBLAU/Martin Geyer

Das Konrad-Lorenz-Gymnasium ist der größte Gebäudekomplex in Gänserndorf und bietet rund 1.000 SchülerInnen Platz. Die bestehende, dunkle Gangschule mit ihren langen, einstöckigen Klassentrakten war allerdings nicht mehr zeitgemäß. Für die insgesamt 40 Klassen entwickelten wir ein neues Raumkonzept. Die Bestandsgebäude im Norden und Süden sanierten und adaptierten wir und errichteten dazwischen einen komplett neuen Bauteil als Verbindung. So verwandelten wir das alte Gebäude in eine moderne und freundliche Schule zum Wohlfühlen.

Natürliche Leichtigkeit – Mit dem neuen Zubau erhielt das Gymnasium auch ein neues, charakteristisches Äußeres. Die feingliedrige Holzlamellenfassade verleiht dem Gebäude Leichtigkeit und Dynamik. Die aus heimischer Lärche gefertigten, diagonal und vertikal angeordneten Latten erhalten durch den Einfluss der Witterung im Lauf der Zeit eine wunderschöne, silbrig-graue Patina.

Alles im Blick – Die neue, offene Aula in der Gebäudemitte bildet das kommunikative und identitätsstiftende Herzstück der Schule. Eine breite Sitztreppe mit bunten Pölstern verbindet Garten-, Erd- und Obergeschoß. Im Bereich darunter spielen die SchülerInnen in den Pausen Tischtennis- oder Tischfußball und können sich auf einer Turnmatte austoben. Drei große Dachfenster versorgen den ganzen Raum mit viel Tageslicht.

Von den offenen Bereichen wie der Aula und dem ebenfalls neu gestalteten Foyer ausgehend sind die Klassen räumlich in Clustern zusammengefasst. In zusätzlichen Pausen- und Bewegungszonen gibt es für die SchülerInnen gemütliche Sitzmöbel oder Kletterstangen zum Herumkraxeln.

Immer der Farbe nach – Damit in dem weitläufigen Gebäude für eine gute Orientierung gesorgt ist, entwickelten wir gemeinsam mit Kriso Leinfellner/Visuelle Kultur KG ein optisches Leitsystem, mit dem jede Klasse eine ganz eigene visuelle Adresse erhält. Als Leitfarbe zieht sich Seegrün durch die Innenräume, jedem Stockwerk ist zusätzlich eine eigene Signalfarbe – rot, grün, oder blau – zugeordnet. Je nach Lage gibt es für jeden Klassen-Cluster außerdem ein eigenes Muster. Dieses findet sich etwa auf Glasflächen oder den Sitznischen wieder, die wie multifunktionale Raummöbel die Klassen von den Gangbereichen trennen. Auf den Rückseiten dieser Elemente ist in den Unterrichtsräumen jede Menge Stauraum untergebracht.

Großzügiger Freibereich – Von den raumhohen Fenstern in den Klassenzimmern aus haben die SchülerInnen einen Blick in die Schulhöfe und den großzügig gestalteten Schulgarten. Die Freibereiche sind ebenso wie die Innenräume alles andere als eintönig gestaltet: Mit unterschiedlichen Möbeln und einem Wechsel aus strukturierten Plätzen und naturnahen Flächen gibt es hier viel Platz zum Entspannen, Bewegen, Spielen und kreativen Lernen.

Photo © EMILBLAU/Martin Geyer
Photo © EMILBLAU/Martin Geyer
Photo © EMILBLAU/Martin Geyer
Photo © EMILBLAU/Martin Geyer
Photo © EMILBLAU/Martin Geyer
Photo © EMILBLAU/Martin Geyer
Photo © Lisa Rastl
Photo © Lisa Rastl
Photo © Lisa Rastl
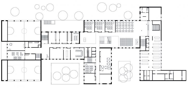
Grundriss Gartengeschoß
© Franz&Sue
Grundriss Erdgeschoß
© Franz&Sue
Grundriss Obergeschoß
© Franz&Sue
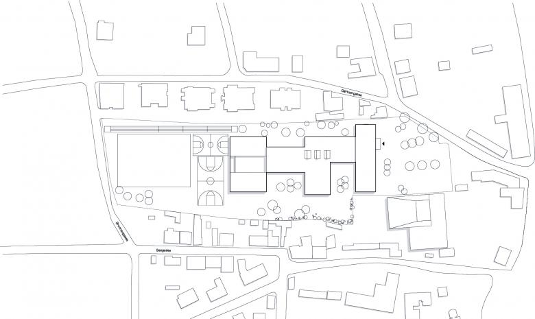
Lageplan
© Franz&Sue
Year
2022
Project Status
Built
Client
Bundesimmobiliengesellschaft m.b.H.
Team
Lucie Vencelidesová (PL), Andreas Reuter, Christoph Holzinger, Josef Kern, Mihail Karakolev, Elly van der Bloemen, Lara Baler, Alexandra Flanjak, Paulina Lakomiec, Gregor Natter
Statik
Petz ZT-GmbH
Bauphysik
IBO Östereichisches Institut für Bauen und Ökologie
Gebäudetechnik
Zencon GmbH
Landschaftplanung
EGKK Landschaftsarchitektur
Brandschutz
Hoyer Brandschutz GmbH
Architekturgrafik, Mitarbeit Innenausbau
Visuelle Kultur KG

Other Projects by Franz&Sue 

Bildungscampus Puntigam - Volksschule
Graz, Austria
Wohnhochhaus Nordbahnhof
Wien, Austria
Wohnbau Oberwagram
St. Pölten, Austria
Neubau Berliner Stadtreinigung – BSR-Zentrale
Berlin, Germany
Leitspital Region Liezen
Stainach-Pürgg, Austria