Erweiterung des Landesjugendheims in Hollabrunn
Zuhause auf Zeit – Soll eine schwierige Reise enden, braucht es zum Ankommen geschützte Räume der Geborgenheit. Jugendliche aus schwierigen familiären Verhältnissen ziehen hierher, wenn das Zuhause keines mehr ist: Ein Übergangs- und Schonraum, in dem man Wertschätzung und Sicherheit erfährt, aber auch einen Bereich, in dem man mit anderen lebt, sich in Ruhe persönlich und beruflich entwickeln kann.
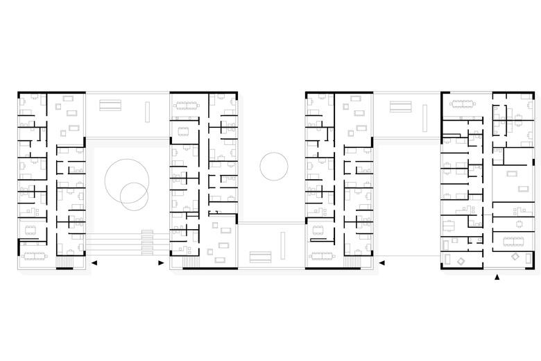
Die Vielfalt eines jungen Lebens unter einem Dach auf Zeit fassen: intime, semi-öffentliche und exponierte Momente, das war unsere selbst gestellte Herausforderung. Bis zu 60 – meist weibliche- Jugendliche aus Niederösterreich leben und arbeiten hier. Manche halten sich hier 24 Stunden lang auf, sogar an den Wochenenden. Wenn ein Bursche keine Übernachtungsmöglichkeit hat, darf auch er bleiben.
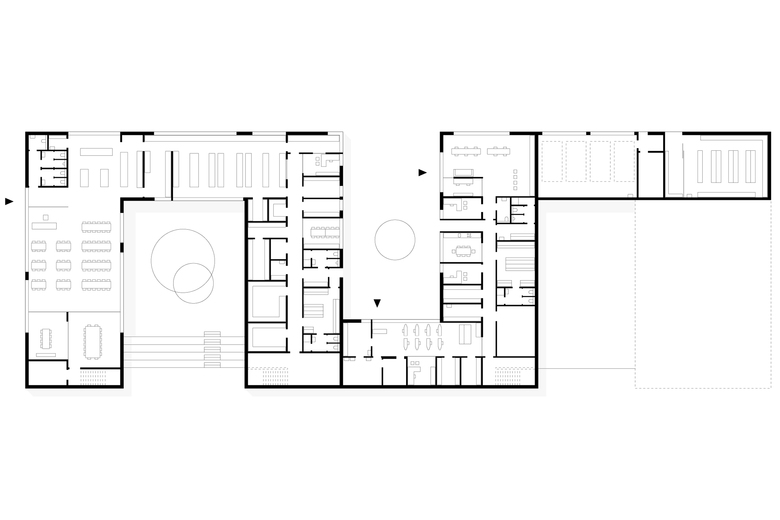
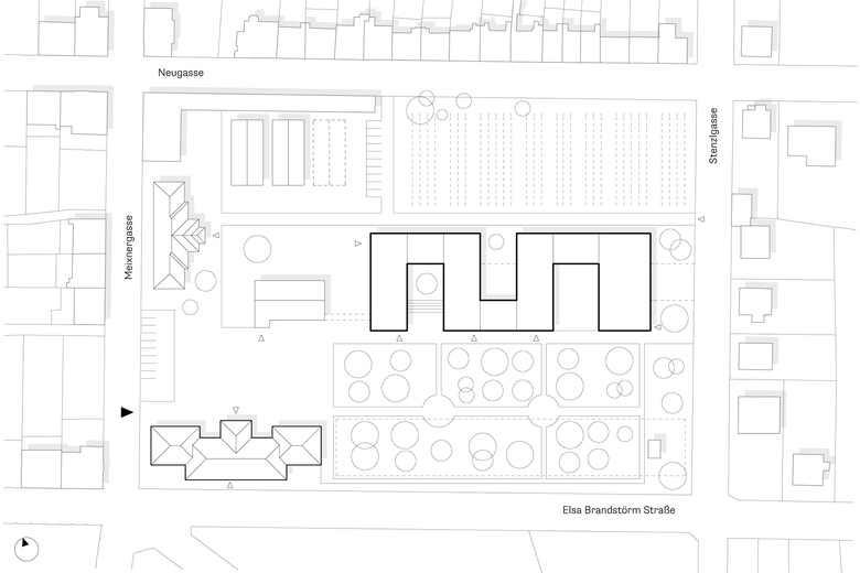
Neue Landschaft im Ahornhain – Dem gewachsenen Ensemble des Landesjugendheims mit Verwaltungsgebäude (1890), Schule, Kapelle (Sechziger Jahre) und Wirtschaftsgebäude, das den modernen Anforderungen gemäß von den Architekten adaptiert, neu gegliedert und vergrößert wurde, wurde ein mäandrierende – bis zu zwei Stock hoher – 93,30 Meter langer Baukörper zugefügt.
Er nimmt die abschüssige Topographie auf und gliedert die – bisher kaum beachtete – wunderschöne Grünfläche, in einen südlichen intimen Park mit alten Ahornbäumen und einen nördlichen Bereich mit den Wirtschafts- und Lehrgärten.
Geborgenheit in der Gemeinschaft – Die Wohn- und Arbeitsbereiche sind räumlich und organisatorisch klein strukturiert, gut überschaubar und haben eine persönliche, vertrauens- und beziehungsfördernde Atmosphäre. Die hellen Wohngruppen mit warmen Parkettboden und Ein- und Zweibettzimmern, eigener Küche, Wohnzimmer und Terrasse geben Rückzug und Halt, „ein angenehmer, überhaupt nicht selbstverständlicher Luxus“, so die BewohnerInnen.
Ruhe und Helligkeit – An den geschützten Innenhöfen liegen ebenerdig die Lehrwerkstätten, wie Küche, Wäscherei und Friseur, die von KundInnen aus der Ortschaft besucht werden. Ein großer Speisesaal für etwa 100 Personen, in dem Kaffee und Kuchen auch für Gäste angeboten wird, liegt stirnseitig, einladend öffnet er sich zum älteren Bestand.
Das satte Grün der Umgebung ist in alle Räumen durch die großen Fassadenfenster erlebbar, schafft Ruhe und Helligkeit: Ankommen und Zuhause sein – hier auf Zeit und im Leben draußen hoffentlich für immer.
- Year
- 2015
- Project Status
- Built
- Client
- CLIVUS Grundstückvermietungsgesellschaft m.b.h.
- Team
- Corinna Toell (PL), Sonja Mitsch (PL), Wolfgang Fischer
- Statik
- DI Wolfgang Engel
- Bauphysik
- Schöberl & Pöll GmbH
- Gebäudetechnik
- TK11 Gebäudetechnik e.U.
- Brandschutzplanung
- stb Sicherheitstechnisches Büro GmbH












