Bildungszentrum Innenstadt Leoben
Subtrahieren, addieren, drehen – Leoben ist die zweitgrößte Stadt der Steiermark. Die Montanuniversität und die zahlreichen hier ansässigen Industrieunternehmen prägen diesen Ort und seine BewohnerInnen. Eine Stadt mit Tradition und Baukultur, aber auch einer heterogenen Bevölkerung und vielen Kindern, die eine differenzierte pädagogische Begleitung benötigen.
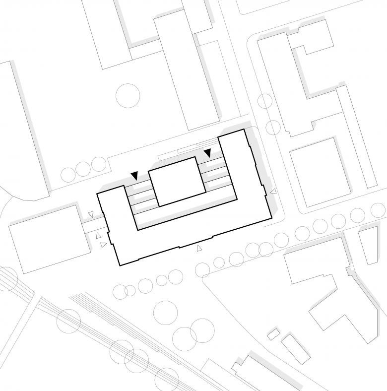
Das neue Bildungszentrum Innenstadt Leoben zeigt als einer der größten Schulstandorte der Region, wie Vielfalt in einer Gemeinschaft funktioniert. Die Volksschule und Neue Mittelschule mit insgesamt 600 Kindern teilten sich immer schon ein Gebäude – jedoch ohne gemeinsame Räume oder Synergien. Und so wurde der Architekturwettbewerb zur Sanierung und Erweiterung zum Anlass, eine gemeinsame Identität zu finden.
Auf Augenhöhe – Begonnen hat dieser Prozess, nicht wie sonst im ersten Verhandlungstreffen, sondern während der Wettbewerbsphase, wo wir an mehreren Workshoptagen mit 70 LehrerInnen die Aufgabenstellung und Anforderungen diskutierten. Moderiert wurden die Gespräche vom Architekturbüro nonconform. So hatten wir die Möglichkeit, Wünsche und Bedürfnisse der PädagogInnen in unseren Entwurf und später in die Planung einzubeziehen, und im Gegenzug lernten unsere Gegenüber von unserer langjährigen Erfahrung im Schulbau.
Transformation auf allen Ebenen – Den denkmalgeschützten Altbestand der 1904/05 erbauten Schule konnten wir in seiner Substanz belassen, durch den Abbruch der Schulwarthäuschen und Sanitäranlagen schaffen wir mehr Platz und Transparenz. Den so entstehenden Raum zwischen dem denkmalgeschützten Klassentrakt und dem Turnsaalgebäude füllen wir mit großzügigen und zum Garten geöffneten Gemeinschaftsflächen.
Die abgetreppten, verglasten Bereiche mit teilüberdachten Balkonen bieten den Kindern großzügige gemeinsame Freiräume mit Blick auf die alte Stadtwiese. Das Gesicht der Schule mit dem neuen Haupteingang orientiert sich nun zum Grünen.
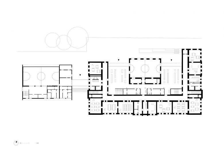
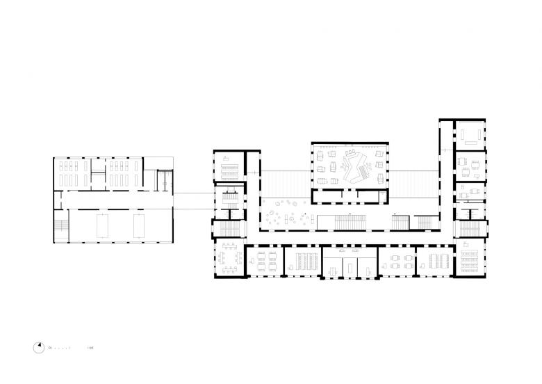
Neues Niveau – Aus dem ehemaligen Keller wird durch Abgraben ein Erdgeschoss mit einem hellen, offenen Foyer und direktem Zugang zur Wiese. Von hier aus können sich die SchülerInnen einfach orientieren und schnell überall hingelangen. Mit den Garderoben in der Lernlandschaft, der Bibliothek und dem Veranstaltungsraum entsteht ein neuer, sozialer Kern.
Schule mit Herz – Diese kommunikative Grundhaltung des Bildungszentrums sieht man am deutlichsten an der zentralen Treppe, die alle vier Stockwerke verbindet und mit den Lufträumen dazwischen das Herz der Schule bildet. Lange, dunkle Gänge und tote Winkel ersetzen wir durch mobile Gangmöbel, Innenwände mit Fenstern, Sitznischen und transparente Gruppenräume. Kleine und größere Transformationen im Innern – das sonnige Farbspektrum oder die gelochten Seekieferdecken mit Sternenhimmel-Beleuchtung – tragen zur offenen und freundlichen Atmosphäre bei, die man beim Betreten der Schule spürt.
Miteinander wachsen – In unseren Workshops mit den LehrerInnen kam es zu durchaus hitzigen und lebendigen Diskussionen, vor allem wenn es darum ging, wie man sich als Gruppe von Lehrenden räumlich so organisiert, dass sich alle wohlfühlen. Wir nahmen das Bedürfnis nach getrennten Lehrerzimmern mit Einzelarbeitsplätzen ernst und überzeugten die PädagogInnen von einer alternativen Lösung: ein multifunktionales Möbel steht nun in der Mitte des großen, gemeinsamen Lehrerzimmers. Es trennt die Arbeitsbereiche der VS und NMS voneinander, enthält Spinde und bildet gleichzeitig die verbindende Lounge.
- Year
- 2019
- Client
- Infra KG Stadtgemeinde Leoben, Laubreiter Bauingenieur Ziviltechniker GmbH
- Team
- Martino Libisch (PL), Carla Kuhn, Florian Haim, Barbara Wagner, Louai Abdul Fattah, Ajdin Vukovic














