Anatomielehrstuhl Medizinische Universität Graz
Der Anatomielehrstuhl der MedUni Graz genießt in internationalen Fachkreisen hohes Ansehen. An der Universität ist man nicht nur auf die gute Reputation von Lehre und Forschung stolz, sondern auch auf ein spezielles, hier entwickeltes Konservierungsverfahren für Leichname, das den Studierenden ein realitätsnahes Erlernen von Operationstechniken ermöglicht. Regelmäßig kommen Fachleute aus aller Welt nach Graz, um dieses Verfahren zu studieren.
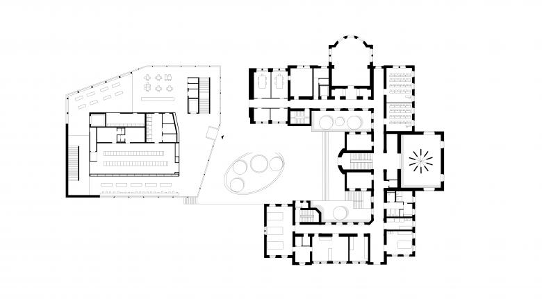
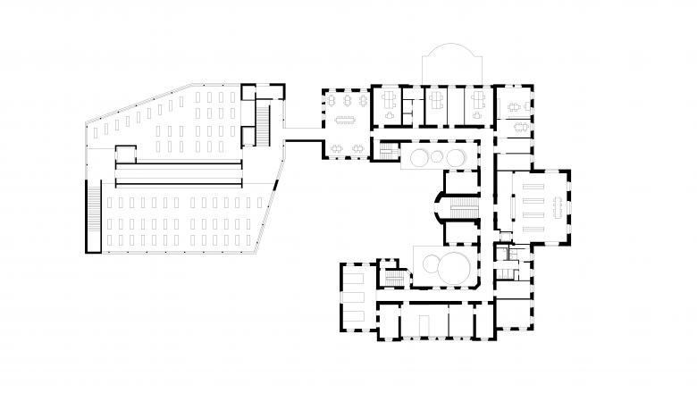
Typische Pavillonstruktur – Am Areal des neuen MED CAMPUS Graz erhielt die Anatomie nun eine neue Heimat und übersiedelte an den ehemaligen Sitz der Pathologie. Wie viele um die Jahrhundertwende entstandenen städtischen Spitalsbauten ist auch das LKH-Universitätsklinikum in der für die Zeit typischen Pavillonstruktur mit freistehenden Einzelgebäuden errichtet. Das ehemalige Pathologie-Gebäude stammt aus dem Jahr 1912 und steht unter Denkmalschutz. Im Zuge der späteren Nachverdichtung kam in den 1980er-Jahren direkt daneben ein neuer Pavillon für einen Hörsaal dazu. An dessen Stelle realisierten wir nun einen Neubau, der im Obergeschoß Platz für zwei Seziersäle mit insgesamt 78 Seziertischen bietet, und damit zu den größten derartigen Einrichtungen in Europa zählt.
Viel Platz für ein sensibles Forschungsfeld – Ausgelegt sind die beiden Räume für 480 Personen, an jedem Tisch können mehrere Studierende parallel arbeiten. Im Kellergeschoß des neuen Lehr- und Forschungspavillons sind außerdem die Bereiche für die Aufbewahrung der Leichname untergebracht, unter anderem mit insgesamt 180 Plätzen in Regalen, ebenso vielen in Konservierungstanks sowie 100 Kühlzellenplätzen.
Besondere Anforderungen an die Haustechnik – In den Seziersälen sind für einen sicheren Umgang mit den Leichnamen spezielle Lüftungsanlagen notwendig, um die Formaldehydbelastung bei den Seziertischen zu reduzieren. Weil für das Belüftungssystem in dieser Dimension kein tauglicher Stand der Technik vorhanden war, entwickelten wir die Anlage für diesen besonderen Anwendungsfall im Rahmen des Projekts eigens als Prototyp. In Zusammenarbeit mit den FachexpertInnen der Med Uni starteten wir Versuche an 1:1-Mock Ups, führten Rauchversuche durch, um die Luftverteilung zu analysieren und ließen mittels Computersimulation eine Luftströmungsstudie erstellen.
Innovatives und effizientes Verfahren – Statt einer direkten Absaugung wird durch unser neu entwickeltes Verfahren nun über den Seziertischen eine Frischluftwolke eingeblasen, die sich mit der Raumluft mischt und schließlich über die Lüftungsanlage abgeleitet wird. An jedem Seziertisch werden über die Anlage 150 m³ Luft pro Stunde zugeführt, für den gesamten Raum beträgt das Zu- und Abluftvolumen 16.000 m³ pro Stunde, bei einem elf- bis zwölffachen Luftwechsel. Das neu entwickelte Verfahren ist dabei wesentlich effizienter als die sonst oft verwendeten, sogenannten laminaren Systeme, die etwa die sechzigfachen Luftwechsel benötigen.
Hoher Technikanteil – Die dennoch beeindruckend dimensionierte Haustechnikanlage mit ihren mächtigen, verchromten Verrohrungen prägt nun auch den Gesamteindruck der Seziersäle. Wie hoch der Technikanteil im gesamten Gebäudeensemble der neuen Anatomie ist, zeigt das durchaus ungewöhnliche Verhältnis von 4.200m² Nutzfläche zu 2.200m² Technikfläche in Alt- und Neubau.
Zwischen Offenheit und pietätvoller Abgrenzung – In den Sezierbereichen setzten wir deshalb ganz bewusst auf schlichte und pragmatische architektonische Detaillösungen, um ruhige Räume zu schaffen, die nicht gänzlich von der Technik vereinnahmt werden. Eine Profilglasfassade mit transluzenter Wärmedämmung sorgt für eine natürliche Belichtung und schützt gleichzeitig vor unerwünschten Einblicken von außen. So gelingt hier die Balance zwischen räumlicher Offenheit und pietätsvoller Abgrenzung.
Unterirdischer Hörsaal – Als Verbindung zwischen Neubau und Altbestand schufen wir auf dem Platz dazwischen einen holzvertäfelten Hörsaal für 500 Studierende. Über die verglaste Rückseite sowie ein kreisrundes Oberlicht wird der große Raum mit viel Tageslicht versorgt. Darüber entstand ein urbaner, begrünter Platz, der Alt- und Neubau fußläufig verbindet.
Vom Gründerzeitgebäude zum Labor – Der denkmalgeschützte Altbestand mit der Verwaltung, Seminar- und Laborräumen, der Bibliothek sowie einem historischen Anatomiesaal mit gusseisernen Sitzbänken wurde sanft saniert, aufwändig restauriert und von einem Gründerzeitgebäude zu einem Labor ausgebaut. Den größten Eingriff im historischen Gebäude nahmen wir mit dem historisch immer fehlenden und nun neu geschaffenen Haupteingang an der Ostseite vor: Dazu brachen wir nachträglich errichtete Teile ab und machten Platz für ein helles, einladendes Foyer: Einen zentralen Eingangsbereich, der Orientierung gibt, und der die Studierenden, MitarbeiterInnen und BesucherInnen dieser von außen unscheinbaren, im Inneren aber technisch einzigartigen Lehr- und Forschungsstätte angemessen empfängt.
- Year
- 2022
- Project Status
- Built
- Client
- Bundesimmobiliengesellschaft m.b.H.
- Team
- Thomas Rögelsperger (PL), Anna Ladurner, Magdalena Brodka, Leire Azkarate, Horst Bernhard, Linda Ercusi, Nina Gromoll, Thomas Huck, Mihail Karakolev, Ventsislav Kartselin, Daniel Kleber, Daniel Krawczyk, Carla Kuhn, Werner Maiacher, Tanja Marben, Julia Sonnleitner, Ajdin Vukovic, Barbara Weber, Louai Abdul-Fattah, Leo Hollmann, Angela Lulati, Suvi Repo
- Statik, Bauphysik
- KPPK ZT GmbH
- Gebäudetechnik
- Zentraplan Planungsges.m.b.H.
- Lichtplanung
- Designbüro Christian Ploderer GmbH
- Landschaftplanung
- Rajek-Barosch Landschaftsarchitektur
- Brandschutzplanung
- Norbert Rabl Ziviltechniker GmbH
- Labortechnik
- ARGE Limet-Mader
- Kulturtechnik und Wasserwirtschaft
- Hydroconsult GmbH












