Songmont Space
In today's fast-paced world, the pursuit of a higher quality of life continues to rise, and design concepts are increasingly blending practicality and aesthetics seamlessly. Songmont, a renowned brand known for its practical and aesthetic bags, is committed to exploring user experiences that align with modern lifestyles.
ARCHSTUDIO created a brand space for Songmont, incorporating the brand's essence into the design. Based on a concept of a "Frame Courtyard," the design team cleverly introduced a series of meticulously crafted frames, breaking free from the constraints of traditional spatial boundaries and capturing views. This design fosters a harmonious coexistence of interior and exterior and a clear spatial hierarchy, bringing a unique experience.
#01
Project Background
Songmont is a prominent Chinese brand dedicated to crafting functional and aesthetic bags, drawing inspiration from Eastern philosophy centered on self-awareness and freedom. The brand continually refines user experience design in the context of modern lifestyles. Over the past decade, Songmont has gained wide recognition in the domestic market and has also begun to make a mark internationally.
To further amplify its brand influence and convey its spirit, Songmont invited ARCHSTUDIO to design a brand space that integrates multiple functions, including exhibitions, receptions, meetings, photo shoots, and livestreams. Additionally, it provides a destination where visitors can relax and enjoy memorable experiences.
The project is located in a cultural and creative park in Cuigezhuang Town, Chaoyang District, Beijing. Set away from the city's hustle and bustle, the site offers a tranquil environment rich in cultural atmosphere. The original building was a single-story, courtyard-style factory with sloped roofs, constructed using a light steel truss structure. While the building had a certain industrial aesthetic, the overall spatial layout was relatively simple and lacked distinct character. The core challenge was to retain the original structural integrity while re-imagining the space with a unique appeal and identity.
#02
"Frame Courtyard"
ARCHSTUDIO conceived the design with a concept of "Frame Courtyard", breaking the boundaries of traditional space through a series of thoughtfully designed frames. These frames not only enhance the spatial relationship between interior and exterior but also establish a spatial experience with clear hierarchy. During the renovation, the design team first carefully examined the original building's facades and roofs. By introducing frames of various sizes, they optimized natural daylighting and ventilation, creating a new relationship between the interior and exterior landscapes. This transformation breathed new life into the previously monotonous courtyard-style layout.
To enhance the building's physical performance, the design team added an insulation layer to the continuous new walls, effectively shielding the building from external environmental influences. Additionally, the hidden rainwater gutters within these walls cleverly conceal the untidy eaves of the original structure, giving the building a neater and aesthetic appearance. These new walls not only serve a protective function but also act as a window showcasing the brand's spirit, with each frame resembling a carefully curated, captivating scroll painting.
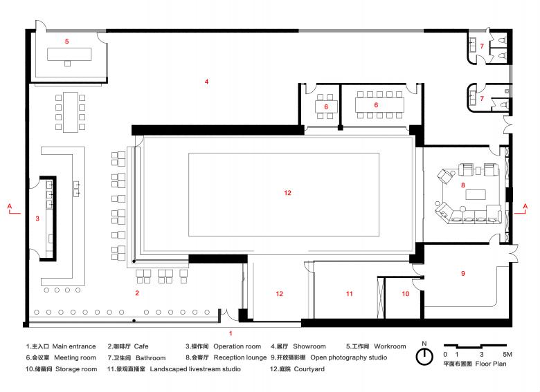
The cafe, a key part of the project, was designed with meticulous details. The design team introduced horizontal frames to maximize the cafe's openness to both the park and the internal courtyard, creating an engaging dynamic between "seeing and being seen." The frames extend into the interior, forming a bar counter and booth seating. This design blurs the boundaries between furniture and architecture, promoting a smooth, natural flow within the space. Visitors can enjoy food while taking in the beautiful outdoor views, enhancing their overall sense of pleasure and relaxation.
The courtyard stands out as another highlight of the renovation. In the center of the courtyard, the design team introduced a thin reflective waterscape, mirroring the blue sky and white clouds. As the breeze gently passes over, ripples form on the water, almost as if filtering out the city's noise and creating a serene atmosphere. This mirrored waterscape not only beautifies the environment but also serves as a key venue for product launches. During events, the water can be drained, and a canopy can be added to create a semi-outdoor space that meets functional needs while offering greater spatial flexibility.
Around the courtyard, walls were designed with different frames that extend into various functional rooms such as meeting room, reception lounge, and livestream studio. These frames open rhythmically to the courtyard, and the motorized louvers outside the frames ensure adjustable privacy based on the rooms' usage.
Inside the original factory building, the dense arrangement of light steel trusses created a somewhat monotonous and oppressive spatial feeling. To address this, the design team carved out funnel-shaped frames of varying sizes in the ceiling. These frames channel soft natural light into the space while also raising the ceiling height, offering a fresh spatial experience.
In selecting finishes, the design team carefully considered the brand's aesthetics, opting for pure, warm tones. Black microcement was used for the flooring, with its subtle reflective surface echoing the water ripples in the courtyard, creating a harmonious and unified atmosphere. Beige stone was used for some walls, countertops, and handrails, further enriching the material palette and enhancing the tactile quality of the space.
The project's design moves away from concrete forms, blurring the boundaries between interior and exterior. The interplay of light and shadow, openness and privacy invites exploration, evoking the introspection and contemplation rooted in Eastern philosophy.
Project information
Project name: Songmont Space
Location: Beijing
Design firm: ARCHSTUDIO
Chief designers: Han Wenqiang, Li Xiaoming
Designer: Wang Tonghui
Structural consulting: Zhu Chang'an
MEP consulting: Zheng Baowei, Li Dongjie, Li Zhongjuan
Image editing: Wang Tonghui
Construction firm: Beijing Jingyu Decoration Co., Ltd.
Project area: 695 sqm
Photography: Jin Weiqi
- Year
- 2024
- Project Status
- Built



































