Green Hills
Green Hills
In this store, ARCHSTUDIO tried to create a relaxed, comfortable and natural environment for urban women. When people pull away from the bustling city and walk into the green and pure plant hills, their body and mind would slow down, so that they can enjoy the "beautiful" time here.
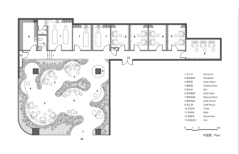
Firstly, the designers divided the whole space into public and private areas. The public area is an open botanic garden. According to the requirement of reception, waiting, manicure, activity, and other functions, it has 10 "hills" in different sizes. The "hills" are interconnected with each other to create an open and flowing path, and some white galvanized steel pipes in 32mm-diameter and 3mm-thickness are used to draw rolling outlines of the "hills". The abstract "hills" are placed on the 550mm high cement platform, around which is decorated with climbing plants. The green porcelain flowers are growing along the outlines vibrantly, reminding people of the changes in time and space.
The private area is for beauty rooms and manicure rooms. With vertical green walls in the rooms, all of them like mini botanical gardens. Each square box is divided into white and gray parts. People sit in the white space and face the plant wall in the gray space, breaking the closed feeling of a single room. The greenery and light permeate through the glass gap in the room, and their shadows are projected in the corridor, creating more interactive experiences.
Project Name: LILY NAILS in Hopson One Shopping Mall
Project Location: Hopson One Shopping Mall, Chaoyang District, China
Project area: 280 m2
Design Time: 2017.07-2017.08
Construction Time: 2017.08-2017.11
Main Materials: Galvanized Steel Pipe, Cement Paint, Plant Wall
Design Company: ARCHSTUDIO
Design Team: Han Wenqiang, Song Huizhong
Copywriter Assistant: Song Huizhong
Plant Consultant: ORIGINAL ECOLOGY
Photographer: Jin Weiqi
- Year
- 2017
- Project Status
- Built




















