Courtyard Villa

Tangshan, China
Bird's-eye view
Photo © Wang Ning

Courtyard Villa

The project is situated on a flat site in the suburbs, which is surrounded by orchards, farmland and rivers, boasting beautiful landscape. On the west side is a grain processing factory, which is an enclosed architecture with pitched roofs designed by ARCHSTUDIO in previous years. There was originally a wooden house on the site, with a typical structure commonly seen a decade ago. To improve the quality of space, the house owner decided to demolish it and build a new architecture on the site. The newly built house mainly functions as a leisure and vacation space, serving for not only living but also receiving guests.
1. Architectural form derived from traditional Chinese courtyard dwellings
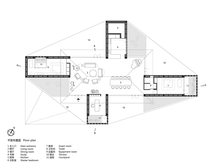
The design concept is derived from courtyard dwellings (Siheyuan), a kind of traditional Chinese residence. Siheyuan has an inward-facing architectural structure, with buildings arranged around a central courtyard. The exterior of Siheyuan is closed, while the interior courtyard is completely open, which offers little privacy for the occupants. Based on site conditions and the main functions of the project, ARCHSTUDIO decided to construct the house by borrowing and transforming the architectural pattern of traditional Siheyuan. The design team arranged four rooms on different sides in a scattered way, added a roof to the "courtyard" and turned it into a hall, and made the exteriors of the hall transparent and open, thereby letting the hall blend with the pleasant outdoor scenery, and ensuring the privacy of individual living spaces and openness for reception activities.
2. Yards inside, terraces outside
The entire architecture is based on the pedestal, with the four rooms independently set on four corners, together outlining the boundary of the house. The four rooms are all inward-facing, and each of them contains a yard inside. With different scales, those yards bring landscape and natural light into the interior. The house consists of private living areas and service spaces, including bedrooms, study, kitchen, and equipment room, all of which are separate from one another to avoid interference. The four rooms jointly support a pitch roof, under which is a flexible public area for accommodating various activities such as reception, dining and piano playing. Thanks to transparent glass windows and doors, public activities can be extended to the outdoor terraces on four sides, where people can enjoy the refreshing greenery.
3. Austere beauty of materials
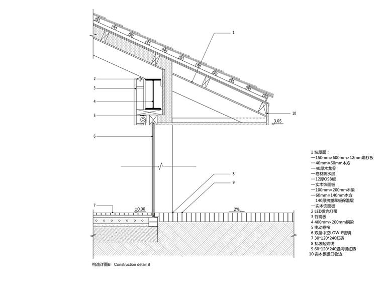
ARCHSTUDIO well handled the relationship among space, structure and materials, and tried to present the natural beauty of materials based on the characteristics of rural leisure space. The four rooms use steel framework and concrete slabs, with the wooden formwork of the in-situ concrete slabs exposed in the interior spaces. Beige shale bricks were utilized to construct the walls. The walls are composed of two vertical layers of bricks, with a thermal insulation layer in between, which improves the thermal performance, ensures identical material texture of the interior and exterior brick walls, and hides framework as well as pipes and wires of equipment. In the inner yards, large areas of the brick walls leave hollows, hence allowing natural air ventilation and light penetration. Pedestal surfaces, either inside or outside, are also paved with beige bricks. The pitched roof of the public area adopts wooden ribbed beams, with the rooftop clad in charred wood tiles. The combination of wood and bricks produces an austere, warm and natural interior ambience. In addition, the fireplace, dining table and piano further identify different public activity areas.

Project location: Tangshan, Hebei, China
Site area: 820 m2
Project area: 265 m2
Main materials: brick, wood, glass
Design phase: May 2017 - August 2017
Construction phase: June 2018 - January 2019
Design firm: ARCHSTUDIO (www.archstudio.cn)
Chief designer: Han Wenqiang
Architectural & interior design: Jiang Zhao, Hu Bo
Structural design: Zhang Yong
Electrical & plumbing design: Zheng Baowei
HVAC consultation: JAGA
Photography: Wang Ning
Text: Han Wenqiang

Aerial view
Photo © Wang Ning
Facade
Photo © Wang Ning
Entrance
Photo © Wang Ning
Entrance
Photo © Wang Ning
Terrace
Photo © Wang Ning
Terrace
Photo © Wang Ning
Exteriors
Photo © Wang Ning
Exteriors
Photo © Wang Ning
Night view of the architecture
Photo © Wang Ning
Night view of the architecture
Photo © Wang Ning
Night view of the architecture
Photo © Wang Ning
Night view of the architecture
Photo © Wang Ning
Living room
Photo © Wang Ning
Living room
Photo © Wang Ning
Night view of living room
Photo © Wang Ning
Living room-facing study
Photo © Wang Ning
Kitchen
Photo © Wang Ning
Study
Photo © Wang Ning
Guest room 1
Photo © Wang Ning
Guest room 2
Photo © Wang Ning
Guest room 2
Photo © Wang Ning
Guest room details
Photo © Wang Ning
Details
Photo © Wang Ning
Aerial view
Photo © Wang Ning
Concept diagram
Drawing © ARCHSTUDIO
Site plan
Drawing © ARCHSTUDIO
Floor plan
Drawing © ARCHSTUDIO
South elevation
Drawing © ARCHSTUDIO
West elevation
Drawing © ARCHSTUDIO
Section A
Drawing © ARCHSTUDIO
Section B
Drawing © ARCHSTUDIO
Construction detail A
Drawing © ARCHSTUDIO
Construction detail B
Drawing © ARCHSTUDIO
Sample wall
Drawing © ARCHSTUDIO
Original wooden house
Photo © ARCHSTUDIO
Groove digging
Photo © ARCHSTUDIO
Steel framework
Photo © ARCHSTUDIO
Curtain wall installation
Photo © ARCHSTUDIO
Wooden roof structure
Photo © ARCHSTUDIO
Thermal insulating material paving
Photo © ARCHSTUDIO
Tiles + wood roof structure
Photo © ARCHSTUDIO
Brick masonry
Photo © ARCHSTUDIO
Year
2019

Other Projects by ARCHSTUDIO 

Organic Farm
Songmont Stores
Shanghai, Shenzhen, Nanjing, Chengdu, China
Songmont Space
Zushan· Ji Xin Monastery· Wood Buddha Statue Museum
Qinhuangdao, China
Mixed House by ARCHSTUDIO | Transformation of a Rural Residence in the Suburb of Beijing