Renovabili HQ
Palermo, Italien
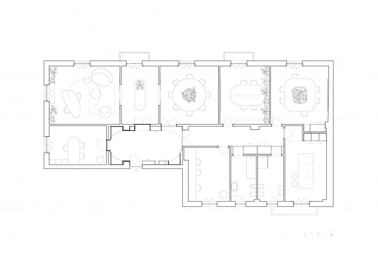
Il progetto di ristrutturazione ha interessato un ufficio di 250 mq destinato a un’azienda attiva nel settore delle energie rinnovabili. L’edificio, risalente agli anni quaranta, si trova in pieno centro e conserva preziosi elementi originali quali soffitti decorati in gesso, porte in legno e pavimenti in graniglia, che sono stati valorizzati come memoria storica e identità del luogo. L’intervento ha mirato a integrare questi caratteri con un linguaggio contemporaneo capace di rispondere alle esigenze funzionali e rappresentative del committente. La distribuzione interna si articola in diversi ambienti di lavoro distinti, una sala riunioni, uno spazio d’attesa e una cucina comune concepita come spazio di convivialità e condivisione. Ogni ambiente è stato progettato su misura, caratterizzato con arredi e soluzioni spaziali capaci di garantire comfort ed ergonomia, senza rinunciare a un’estetica coerente con il contesto.
Elemento cardine del progetto è stata l’integrazione del verde, richiesta esplicitamente dal committente, appassionato di botanica. Piante e sistemi vegetali sono stati inseriti come veri e propri dispositivi architettonici, integrandoli negli arredi disegnati su misura: separano gli spazi senza isolarli, migliorano la qualità dell’aria e introducono un senso diffuso di benessere. Il progetto configura un ambiente di lavoro che riflette i valori dell’azienda: sostenibilità, rispetto per l’esistente e attenzione alle persone. Un ufficio che unisce tradizione e contemporaneità, offrendo spazi funzionali, accoglienti e ispirati alla natura.
- Architekten
- La Leta Architettura
- Jahr
- 2025
Dazugehörige Projekte
Magazin
-
-
-
-
Un despatx madrileny signa un visionari catalitzador urbà en West Palm Beach
Andrea Pala | 29.11.2018 -
L'arquitectura de Francis Keré en escena en el Museu ICO de Madrid
Andrea Pala | 28.10.2018
























