天悦壹号室内改造设计
范家庄东路1号, 北京, China
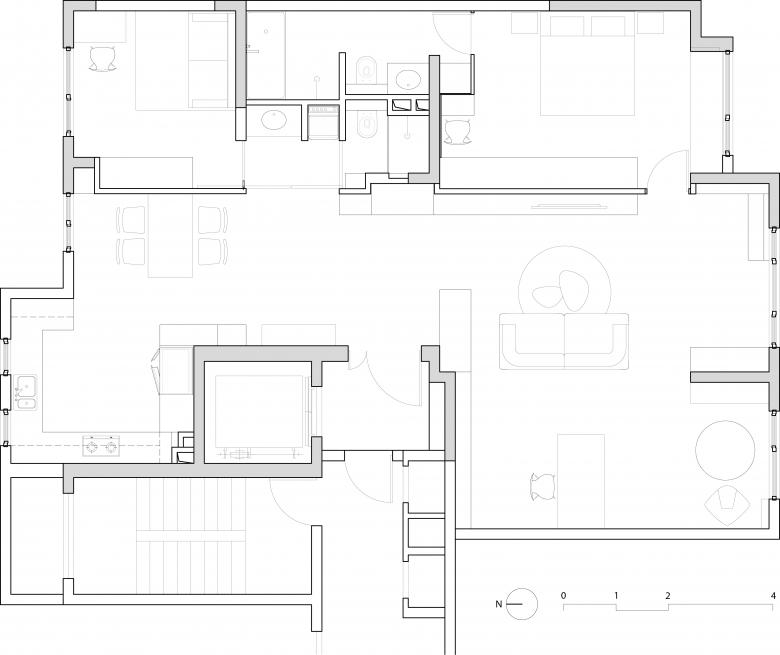
这个设计从业主带回的这块石头开始了解业主对生活的认识和我们对这个家的设计的认识。业主对时间和自然的喜好、想象和记忆给无机的石头附上了有机的属性,这也是生命和环境发生互动的结果。这一对物的认识影响到我们后续的空间设计和材料使用:如何建立房间内部的空间联系来容纳日常生活的互动关系,如何引用一种材料可以伴随生活缓慢生长。
- Architekten
- beyondtime architects
- Jahr
- 2023
- Project Status
- Gebaut
Dazugehörige Projekte
Magazin
-
-
-
-
Un despatx madrileny signa un visionari catalitzador urbà en West Palm Beach
Andrea Pala | 29.11.2018 -
L'arquitectura de Francis Keré en escena en el Museu ICO de Madrid
Andrea Pala | 28.10.2018
























