Wohnhaus Link
Pöcking, Germany
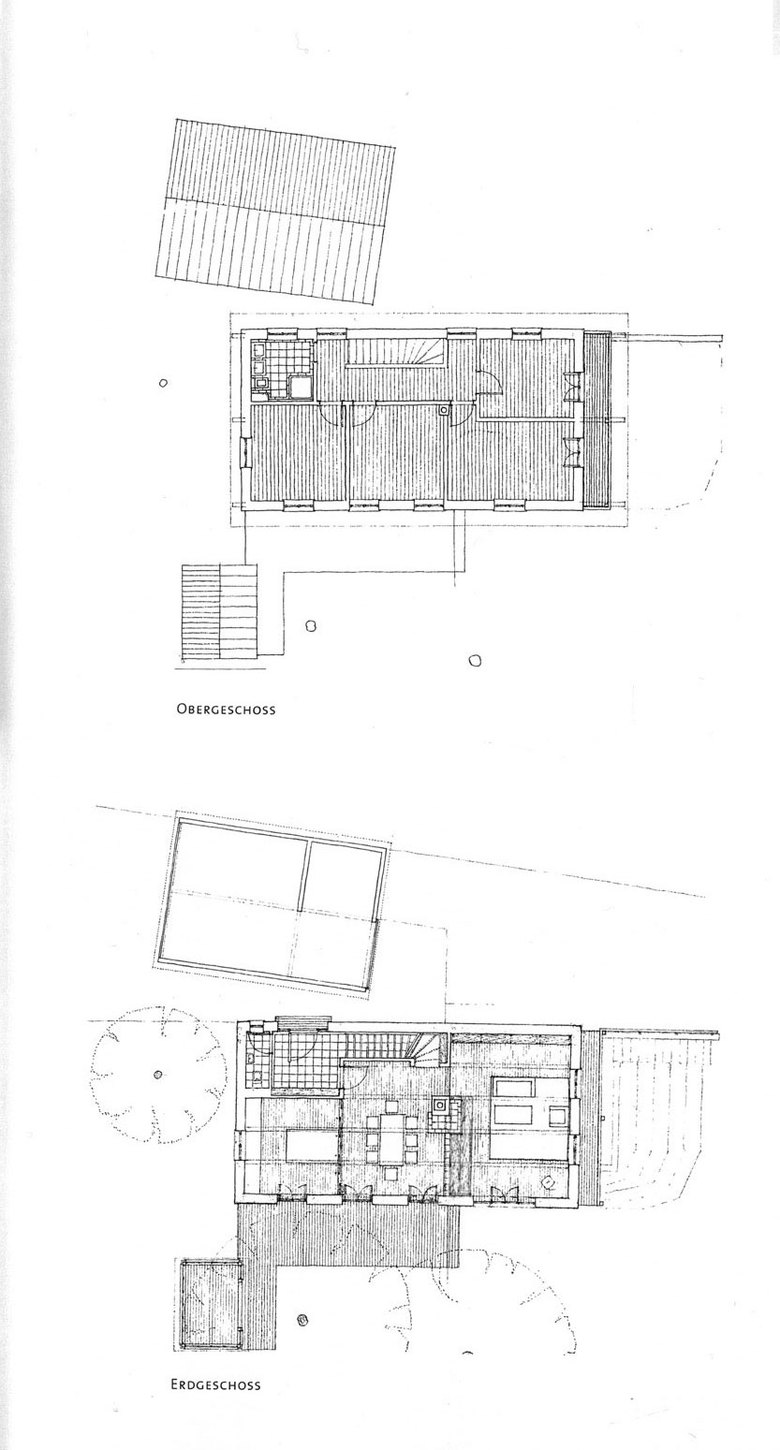
Einfamilienhaus mit Garage und Gartenhaus für eine 6-köpfige Familie. Umfang. 200 qm WF, Garage, Gartenpavillon
Video
“Die große Kunst, ein kleines Haus zu bauen”, von Dieter Wieland im BR (Bayerischer Rundfunk)
Kunde
privat
Leistung
Architektur und Interior
Bearbeitungszeitraum
1998-2000
Projektbeteiligte
Bruno Franchi
Fotos
Jens Weber, München
Bruno Franchi, München
- Architects
- Studio Bruno Franchi
- Any
- 2003
Projectes relacionats
Revista
-
-
-
-
Un despatx madrileny signa un visionari catalitzador urbà en West Palm Beach
Andrea Pala | 29.11.2018 -
L'arquitectura de Francis Keré en escena en el Museu ICO de Madrid
Andrea Pala | 28.10.2018













