Kolonialhotel “Bell Rock”
Rust, Germany
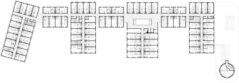
Neuartiges Hotelkonzept für Europas größten Themenpark in verschiedenen amerikanischen Kolonialstilen. Umfang: Lph 1- 4, 240 Doppelzimmer mit Stockbetten, Junior Suiten, Suiten, Lounge, SB-,A la carte u. Fine Dining Restaurant. 18.000 qm BGF, 68.000 cbm BRI
Kunde
Europapark Rust,
Rudolf Neumeier GmbH & Co KG
Leistung
Planung der Architektur und Innenarchitektur
Bearbeitungszeitraum
2009-2012
Projektbeteiligte
Bruno Franchi mit Achim Dannenberg
Mitarbeiter: Uta Bahn
Fotos
Bruno Franchi
- Architects
- Studio Bruno Franchi
- Any
- 2012
Projectes relacionats
Revista
-
-
-
-
Un despatx madrileny signa un visionari catalitzador urbà en West Palm Beach
Andrea Pala | 29.11.2018 -
L'arquitectura de Francis Keré en escena en el Museu ICO de Madrid
Andrea Pala | 28.10.2018



















