Karree St. Marx - Viehmarktgasse

Viehmarktgasse 1A, 1030 Wien, Austria
© Manfred Seidl

Das Projekt wurde vom Masterplan bis zum Hochbaudetail von Geiswinkler & Geiswinkler bearbeitet.

Auf dem Gebiet des ehemaligen Schlachthausviertels, einer städtischen Wildnis, entsteht ein neues Stadtviertel.

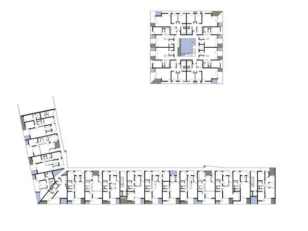
Schwebend über einer durchgängigen Parklandschaft finden sich Stadtvilla und L-förmiger, straßenbegleitender Riegel.

Die Gebäudetypologie als „gestapelte Stadt“ erlaubt hohe Grundrissvielfalt.

2-geschossige „Vertikalgärten“ sind durch 30 cm Humusschicht individuell bepflanzbar und prägen die Terrassenstrukturen.

Die gemeinschaftlichen Freiflächen befinden sich auf den Flachdächern der jeweiligen Wohngebäude.

Eine modulare Grundrissstruktur garantiert Flexibilität und variable Gestaltungsmöglichkeiten.

© Manfred Seidl
© Manfred Seidl
© Manfred Seidl
© Manfred Seidl
© Manfred Seidl
© Manfred Seidl
© Manfred Seidl
Visualització © Geiswinkler & Geiswinkler
Visualització © Geiswinkler & Geiswinkler
Any
2009

Altres projectes per Geiswinkler & Geiswinkler 

Gartensiedlung Am Hofgartel
1110 Wien, Austria
Wettbewerb - Citygate
1220 Wien, Austria
Hauptbahnhof II
1100 Wien, Austria
Vertikal-Gartenhaus Alxingergasse
1100 Wien, Austria
Hörbiger
1110 Wien, Austria