Vertikal-Gartenhaus Alxingergasse

Alxingergasse 81, 1100 Wien, Austria
© Manfred Seidl

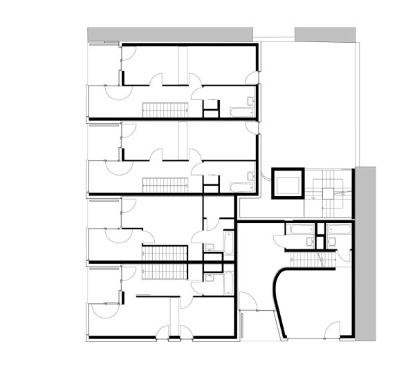
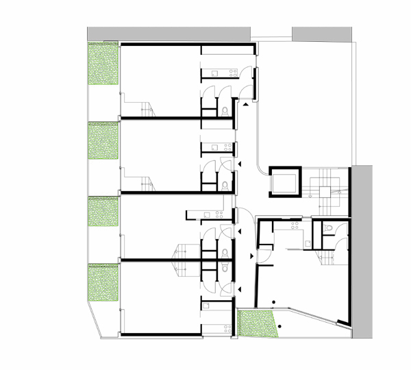
17 Wohnungen, vorwiegend zweigeschossig organisiert, bilden die Struktur des Hauses. Die hohe Dichte des Wohnraumes, hervorgerufen durch die städtebauliche Disposition des Grundstückes an der Blockecke, wird durch die Planung eines großzügigen, allen Bewohnern zur Verfügung stehenden Nutzraumes kompensiert. Die Erdgeschosszone wird baulich transparent behandelt und freigehalten für gemeinschaftliche Bereiche, (Kinderspielraum, Werkstatt, Hobbyraum,…) – ergänzt durch einen von allen Bewohnern zugänglichen bepflanzten Dachgarten.

Jede Wohnung verfügt über einen eigenen Grünraum, der räumlich eng mit dem Wohnraum verzahnt ist. Das grüne Kleid der Vertikal-Gärten ermöglicht eine natürliche Klimaregulierung. Im Innern bietet sich eine hohe Wohnungsvielfalt durch maximale Anpassungsfähigkeit an wechselnde Wohnbedürfnisse.

© Manfred Seidl
© Geiswinkler & Geiswinkler
© Manfred Seidl
© Manfred Seidl
© Manfred Seidl
© Manfred Seidl
Visualització © Geiswinkler & Geiswinkler
Visualització © Geiswinkler & Geiswinkler
Visualització © Geiswinkler & Geiswinkler
Any
2005

Altres projectes per Geiswinkler & Geiswinkler 

Gartensiedlung Am Hofgartel
1110 Wien, Austria
Wettbewerb - Citygate
1220 Wien, Austria
Hauptbahnhof II
1100 Wien, Austria
Hörbiger
1110 Wien, Austria
Wettbewerb - Zentrale der Österreichischen Volksbank AG
1090 Wien, Austria