Turnhalle am Fraenkelufer

Kohlfurter Straße 22 Berlin, 10999 Berlin / Kreuzberg, Germany
Fotografia © Studio Bowie

Die Turnhalle am Fraenkelufer, ein Werk des Architekten Hermann Blankenstein aus dem Jahr 1891, wurde von D/FORM Architekten zwischen 2020 und 2022 umfassend saniert und erweitert. Im Zuge der Maßnahme wurde der denkmalgeschützte Bestand behutsam neuen Nutzungsanforderungen angeglichen und durch moderne Elemente ergänzt, die das Gebäude zukunftsfähig machen.

Das Gebäude aus der Gründerzeit, im historisierenden Stil des 19. Jahrhunderts errichtet und 1961 um einen Umkleidetrakt erweitert, prägt mit seinem baumbestandenen Schulhof das Stadtbild am Landwehrkanal. Durch den Abriss eines Anbaus konnte die stark veränderte Hauptfassade mit ihren großen Fenstern wieder in die ursprüngliche Gliederung zurückgeführt werden. Besondere Sorgfalt galt der Integration einer neuen Fluchttür, die sich harmonisch in das historische Fassadenbild einfügt. Die markanten Fassaden aus rot-gelben Ziegeln und filigranen Terrakottaelementen, typisch für Blankensteins Stil, wurden gereinigt und in enger Abstimmung mit den Denkmalbehörden restauriert.
Um die engen Räumlichkeiten zu erweitern, ergänzten D/FORM Architekten den Umkleidetrakt um einen 100 m² großen Neubau und schufen einen neuen Eingangsbereich. Die zusätzlichen Dachflächen ermöglichten eine Begrünung, die im Altbau nicht realisierbar war.

Der Erweiterungsbau, mit Ziegelverblendmauerwerk gestaltet, fügt sich nach der energetischen Sanierung der Gebäudehülle harmonisch in das Ensemble ein. Er greift die Materialität und Farbgebung des historischen Baus auf und setzt die Geschichte in Backstein fort, ohne den Charakter des Bestands zu stören.

Moderne Nutzung und barrierefreie Gestaltung
Heute nutzen sowohl die Gustav-Meyer-Schule als auch Vereine die Turnhalle für vielfältige sportliche Aktivitäten. Moderne Haustechniksysteme erfüllen aktuelle energetische Standards, ohne das historische Erscheinungsbild zu beeinträchtigen. Die Sanierung schuf ein zeitgemäßes, angenehmes Umfeld für Schulkinder und Sporttreibende.

Auch der Außenbereich wurde neugestaltet. Ein versickerungsfähiger Belag ersetzt versiegelte Flächen, die auf das Nötigste reduziert wurden. Das Gelände wurde so modelliert, dass es rollstuhlgerecht zugänglich ist – ohne zusätzliche Rampen.

Nachhaltigkeit und Architektur im urbanen Kontext
Die Neugestaltung des Bauwerks wertet das Gebäudeensemble auf und fügt sich in die urbane Struktur Kreuzbergs ein. Sie zeigt, wie eine sensible Sanierung und Erweiterung den Anforderungen der Gegenwart gerecht wird, ohne den kulturellen und historischen Wert des Ortes zu schmälern.

Die Turnhalle am Fraenkelufer ist nicht nur ein Beispiel für die gelungene Restaurierung eines historischen Gebäudes, sondern auch für die Möglichkeit, Architektur in Einklang mit den Anforderungen der Gegenwart zu bringen. Mit dieser Sanierung und Erweiterung ist das Gebäude nun ein moderner, funktionaler Raum, der gleichzeitig das historische Erbe bewahrt und respektiert.

Roman Pries, Partner bei D/FORM Architekten „Als Architekten wie als Anwohner freuen wir uns dieses Kleinod instand setzen zu können und das Kreuzberger Stadtbild um eine moderne Sportstätte in historischem Gewand zu bereichern. “

Fotografia © Studio Bowie
Fotografia © Studio Bowie
Fotografia © Studio Bowie
Fotografia © Studio Bowie
Fotografia © Studio Bowie
Fotografia © Studio Bowie
Fotografia © Studio Bowie
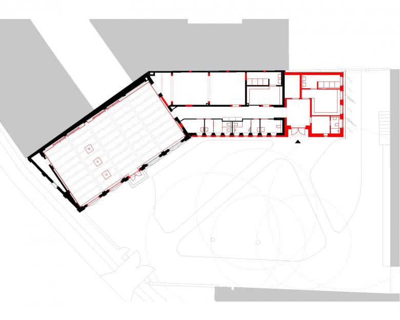
Grundriss Erdgeschoss mit Darstellung Bestand und Neubau
Dibuix © D/Form
Schnitt
Dibuix © D/Form
Any
2022

Altres projectes per D/FORM Gesellschaft für Architektur + Städtebau mbH 

Mausoleen Kunzemann und Bornhagen
Berlin / Kreuzberg, Germany
Restaurierung St.-Catharinen-Kirche
Westensee, Germany
Kulturmühle Parchim
Parchim, Germany
Theaterwerkstätten Hannover
Hannover, Germany
Wasserschloss Quilow
Groß Polzin, Germany