Kulturmühle Parchim
Die ehemalige Eldemühle in Parchim, einst die letzte Großmühle Mecklenburgs, erstrahlt als „Kulturmühle Parchim“ in neuem Glanz. Im Mai 2023 wurde die historische Getreidemühle nach umfangreicher Sanierung und Erweiterung wiedereröffnet.
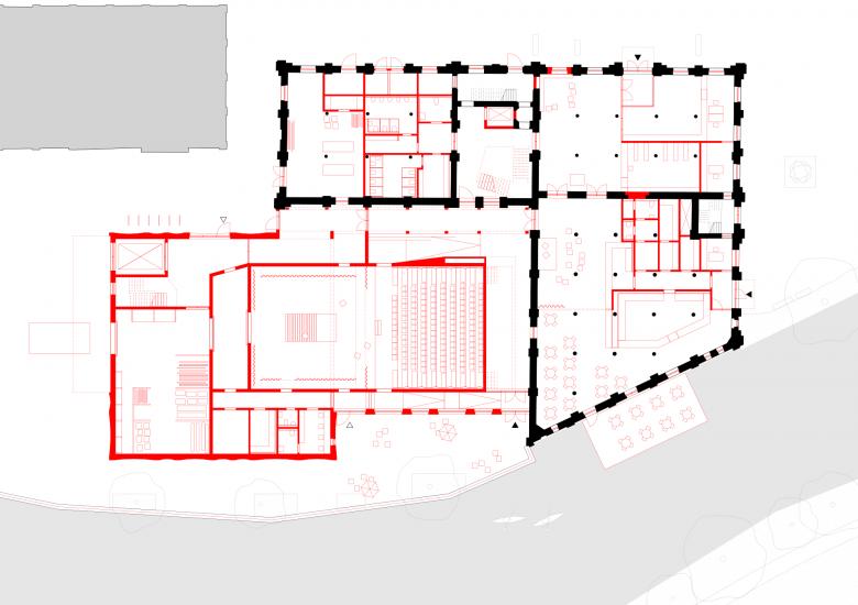
Die Mühle wurde durch den Landkreis Ludwigslust-Parchim nach fünfzehnjähriger Schließung revitalisiert. Durch den aufwendigen Umbau und die Erweiterung um einen Neubau durch D/FORM ARCHITEKTEN (Berlin/Alt Kentzlin) in Zusammenarbeit mit dem Generalunternehmer HTG Hoch- und Tiefbau Gadebusch GmbH entstand ein vielseitiger Kulturkomplex. Das Mecklenburgische Staatstheater für Niederdeutsches Schauspiel (Fritz-Reuter-Bühne) und das Kinder- und Jugendtheater (Junges Staatstheater Parchim) sowie das Stadtmuseum Parchim sind hier beheimatet.
Eingebettet zwischen der ehemaligen Stadtbefestigung und einem Seitenarm der Elde präsentiert sich die Kulturmühle Parchim als Ort der Begegnung. Herzstück des Komplexes ist das Theater, das im Neubau seinen Platz gefunden hat. Mit einem zentralen Theatersaal, Probebühnen, Künstlergarderoben und Werkstätten bietet es optimale Bedingungen für Aufführungen und Proben.
Der industrielle Charakter und die Raumwirkung des unter Denkmalschutz stehenden sechsgeschossigen Mühlenkomplexes aus dem Jahr 1897 blieben erhalten und sind auch nach dem Umbau für die Besucher erlebbar. So wurden die historischen Ziegelwände, Holzbalkendecken und Stahlstützen freigelegt und die Materialität der neuen Einbauten ursprünglich und roh belassen.
Der Neubau im ehemaligen Hof des Ensembles nimmt die Proportionen, Materialität und vertikale Fassadengliederung des Mühlengebäudes auf und entwickelt sie zeitgemäß weiter. Die geschwungene Fassade verleiht den Eindruck eines Theatervorhangs und die stadtbildprägende Wasserfront des neu entstandenen Ensembles lädt ein, Parchim als lebendigen Wohn- und Kulturstandort zu entdecken.
Wo einst Transportbänder und Förderschnecken in Bewegung waren, zirkulieren nun Besucher vom gemeinsam genutzten Foyer über eine zentrale Treppe zwischen den Nutzungen im Alt- und Neubau. Durch die Transformation zur Kulturstätte wurde die Elde-Mühle wiederbelebt und als identitätsstiftender Stadtbaustein erhalten.
- Any
- 2023
- Client
- Landkreis Ludwigslust-Parchim
- Generalübernehmer
- HTG Hoch- und Tiefbau Gadebusch










