Three Tree House
This structure adds a new lounge and service area to a residential campus by transforming the space behind the existing house into an active street that engages both old and new structures, formed by a series of waterbodies that move along a glass facade and end in a bridge that lightly connects existing to new.
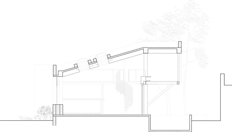
Placed in an already densely grown grove, the new lounge sits as a pavilion among trees. The lifted plane of the roof recreates the ground at the level of the leaves, and from it is suspended a balcony that overlooks the pool.
The composite structure uses steel to create the frame of the lounge and merges it with the concrete and brick of the service area by embedding the members in walls while allowing the steel to emerge when the space opens into the water and trees.
- Any
- 2014
- Project Status
- Construït









