Wind House
A multi-generational family of eight asked for a straightforward house that would naturally withstand the harsh climate conditions of northern Gujarat and weather well over time. In line with their clarity of mind, they submitted a list of their specific requirements, outlining the way that they needed to use their home, and their expectation of a durable, simply designed structure.
In response to the aspiring family, the project balances innovate design ideas and methods with the traditions important to their lives and locally available construction skill, material and knowledge. Integrated into the landscape, the house inhabits a corner site near a series of twin bungalows. A low profile with articulated volumes allows the house to merge with the scale of the surrounding homes, feeling at once both expansive for the family and in conversation with the neighbourhood.
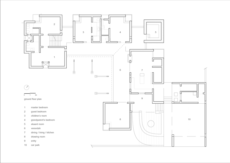
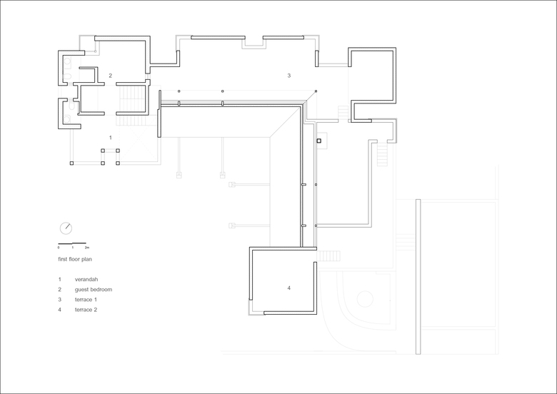
To support their condition of living between inside and out, the home consists of a group of shaded volumes clustered around an L-shaped verandah. Sheltered under the large roof, rooms are surrounded by open passages that draw wind through the house like a sieve. Thick brick walls temper the inside spaces against high diurnal temperature variation. The roof doubles as a summertime sleeping terrace, protected with high walls pocked by openings for targeted ventilation, and during monsoon it gathers rain for storage in a 40,000L underground water tank.
The plan is oriented toward the prevailing south-westerly winds, and while the deep verandah and covered passages protect the volumes from summer sun, the roof allows the low winter sun in to warm their outside walls. The thin sloping concrete slab of the verandah roof structure is supported by a concrete-anchored steel frame embedded into a composite frame and load-bearing structure for the house.
The verandah is the heart of the house. All rooms and all levels empty into it, and it mediates the experience between inside and out. Because much of the family activities occur in this intermediate space, what might have become a passage instead is a place. As a climate responsive element, it absorbs and exhausts the heat of the summer, welcomes warmth in winter, and encourages the movement of air in muggy monsoon. The high summer sun cannot reach direct room walls, and the sloping roof with ventilated openings at the top allows the hot air to rise and naturally exhaust, moving it faster because negative pressure behind the thrust of the wind moving up the verandah roof draws air out faster. In winter, these openings, which are fitted with operable louvers, can be closed to hold in the hot air. The fireplace in the verandah also adds to radiating heat in the space. In monsoon, and on summer evenings, gaps between the room clusters open to draw air through the space, cooling both the verandah and the outer surfaces of inside rooms.
- Any
- 2014
- Project Status
- Construït









