Palanpur Shopping Strip
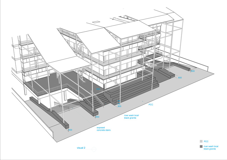
This four story commercial building in northern Gujarat must maximize the visibility of street facing shops, and does so by creating three strips that face two semi-open courtyards between them. The ground floor is elevated to open and ventilate off street parking whose connection to the space above is reinforced by a series of ramps and stairs that run from basement to ground to plinth, with seating embedded to encourage public use. The shade above is modulated to protect the shop fronts from sun, dipping down in the southwest to add a few hours and lifting in the northeast to let the breeze fly out.
- Any
- 2015
- Project Status
- Construït





