Hauptzentrale schlaich bergermann und partner
Schlaich Bergermann und Partner ist ein weltweit renommiertes Ingenieurbüro, das u. a. durch seine Stadien, Brücken und Energiekonzepte bekannt ist. Neben der Hauptzentrale in Stuttgart unterhält das Büro Dependancen in Berlin, New York und São Paulo. Die 110 Mitarbeiter in der Stuttgarter Firmenzentrale verteilten sich dabei auf vier Standorte. Mit dem Umzug in ein kernsaniertes, siebenstöckiges Bürohaus aus den 1970er-Jahren sollten diese wieder an einem Ort zusammengeführt werden. Es befindet sich in prominenter Lage an einer belebten Kreuzung im urbanen Quartier des Stuttgarter Westens. Schlaich Bergermann und Partner bezieht davon sechs Stockwerke.
Mit dem neuen Gebäude wandeln sich Arbeits- und Kommunikationsstrukturen des Unternehmens grundlegend. Ziel war es, einen zentralen Kommunikationsort zu etablieren, der zum Treffpunkt aller Abteilungen wird. Die Arbeitsprozesse, die bisher in dezentralisierten Einzelbüros stattfanden, werden in Großraumbüros verlagert, um auch hier den Austausch zu fördern. Dabei entsteht eine ästhetische Welt, die die Präzision und technische Konnotation des Ingenieurberufs zitiert, und die durch warme Materialien und eine Collage aus kommunikativen Zonen mit ganz unterschiedlichen Atmosphären zu einem Ort wird, an dem man sich wohlfühlt.
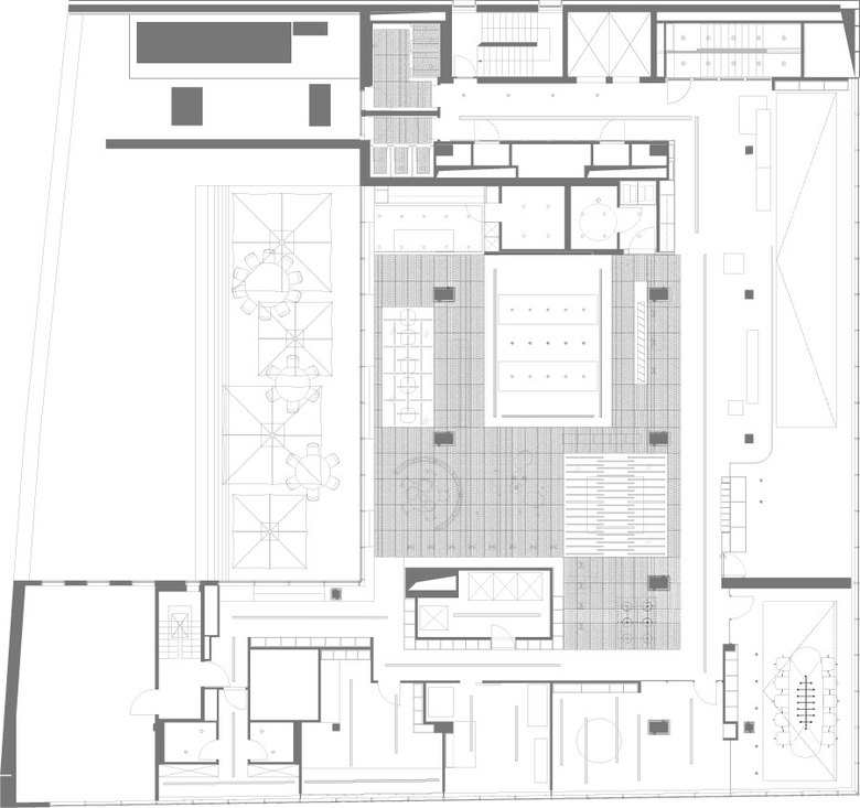
Die erste und zugleich größte Etage ist mit ihrer Mischung aus Empfang, Treffpunkt, Bistro und Besprechungsort das kommunikative Herz des Unternehmens. Hier sind alle Besprecher, aber auch die administrativen Organisationseinheiten untergebracht. Ein breites Angebot an Sitzsituationen mit ganz unterschiedlichen Atmosphären offeriert Aufenthaltsqualität für verschiedenste Anlässe. Dadurch findet Kommunikation hier nicht nur während der Pausenzeiten statt, sondern der Bereich und seine kommunikative Funktion werden als selbstverständlicher Bestandteil in die Arbeitsabläufe integriert.
Besucher erreichen die erste Etage über eine freischwebende Treppe, die von SBP selbst konstruiert worden ist. Sie führt zum Empfang, von dem aus sich der Raum in einer choreografierten Perspektive öffnet. Flankiert wird er im ersten Teil von einer Aluminiumwand mit eingelassenen schwarzen Magnetbändern, die als Präsentationsflächen dienen. Am Empfang, hinter dem eine erste Bürozeile für Sekretariat und administrative Aufgaben angeordnet ist, beginnt ein Teppichband, das auf mineralisch beschichteten Estrich liegt und die Laufzonen markiert. Rückspringende Einschnitte im Teppich sind Wegweiser für die unterschiedlichen Funktionsbereiche des Raums. Ein aufgesetztes, 17 m langes Lichtband an der Decke gibt als Leitstrahl zusätzlich Orientierung.
Hinter dem Empfang reihen sich drei weiße Ausstellungskuben. Ihnen gegenüber ist der Wartebereich eingerichtet, in dessen Rücken ein freistehendes Glasregal die Auszeichnungen des Büros ausstellt. Am Ende des zentralen Ganges befinden sich zwei große Konferenzräume. Hochflorige Teppiche, silberne Vorhänge und Regalwände aus metallischem HPL schaffen hier eine konzentrierte Arbeitsatmosphäre. Die Füße des Tisches im großen Besprechungsraum fallen durch ihre betonte Konstruiertheit ins Auge – eine ironische Anspielung auf das Raumfachwerk und die Kernkompetenz des Ingenieurbüros.
Das Herz der Etage bildet der großzügige Kommunikationsbereich. Seine Dimension steht für die Wichtigkeit, die diesem gemeinsamen kommunikativen Ortes eingeräumt wird. In seiner Gesamtheit wird er gefasst durch eine akustisch wirksame Metallrasterdecke. Darunter sind einzelne Zonen ausdifferenziert, die mit ihren verschieden Atmosphäre Angebote für unterschiedliche kommunikative Bedürfnissen schaffen.
Das Zentrum bildet der große Essbereich mit zwei langen Tafeln und insgesamt 24 Sitzplätzen, die auf changierenden Teppichfliesen in drei unterschiedlichen Grau- und Brauntönen stehen. Darüber befindet sich ein abgehängtes Deckenfeld aus Akustikputz. Orthogonal zu den Tafeln schiebt sich ein Stehtresen wie ein optischer Riegel vor eine Gruppe aus kleinen Einzeltischen an der Fensterfront, die eine intimere Gesprächsatmosphäre bieten. Über diesen Tischen schwebt ein abgesetztes Lichtfeld. Das neongrüne Punktraster auf dem Boden stellt Assoziationen zu einer Wiese her und schafft so eine Überleitung zur Terrasse, die an einer Seite mit einer green wall abschließt. Zwischen Essbereich und Bibliothek bilden zwei behagliche Ohrensessel einen Rückzugs und Leseort. Beistelltischchen und drei langgezogene Lichttulpen unterstreichen den Wohnzimmercharakter. Daran schließt sich ein halbhoher Raum im Raum an: Ein Zylinder öffnet sich zur Terrasse hin und grenzt sich so vom Geschehen im Raum ab. Die akustisch wirksame Polsterung fördert hier das konzentrierte Gespräch, während der hochflorige Teppich, eine Lampengruppe und die Farbwelt in Bronze- und Rottönen eine behagliche Kaminatmosphäre schaffen. Den Gegenpol dazu bildet der quadratische Besprechungsbereich gegenüber, der durch das Lichtfeld an der Decke klar gefasst wird. Durch die nahezu transparenten Gitterstoffvorhänge wird dieser bewusst als halböffentlicher Bereich inszeniert. Frische Farben, der tiefblaue Tisch und ein rosafarbener Teppich versprühen hier inspirierende Lebendigkeit.
Die fünf Arbeitsetagen mit jeweils ca. 25 Arbeitsplätzen folgen im grundsätzlichen Aufbau einer identischen Struktur. Auf dem rechteckigen Grundriss der Geschosse geben zwei Reihen aus jeweils vier Stützen die Büroachsen vor. Die Stützen sind in kreuzförmige Möbeleinheiten integriert, die Stauraum bieten und durch ihre magnetischen Oberflächen als Präsentationsfläche genutzt werden können. Ihr schwebender Aufbau signalisiert Offenheit. Während die Mitarbeiter im Stehen mit den benachbarten Arbeitsplatzgruppen kommunizieren können, entsteht im Sitzen eine Raum-im-Raum-Situation mit der nötigen Diskretion. Die Möbelkreuze werden so zum identitätsstiftenden Moment nach innen und durch ihre prominente Position hinter der Glasfassade auch nach außen.
Jede Etage besteht aus einer unterschiedlichen Anzahl von Einzelbüros bzw. abgetrennten Team-Arbeitsbereichen sowie aus einem großen, offenen Arbeitsbereich. Die Glasfassaden der Einzelbüros stehen auf zwei unterschiedlichen Längsachsen und sind in jedem Stockwerk unterschiedlich im Raum positioniert. Auf diese Weise entstehen abwechslungsreiche Raumlandschaften. Durch ihre durchgehenden Glasfassaden bleiben die Einzelbüros trotzdem einsehbar und somit Teil des Gesamtraums.
Um in den offenen Arbeitsbereichen Abgrenzung von den Bewegungszonen zu schaffen, sind einzelnen Arbeitsgruppen Containermöbel oder gefaltete Glasfilter vorgesetzt. Letztere gewähren durch aufgeschobene Textilpanele akustische Dämpfung und bieten die Möglichkeit, diese als Pinnwand zu nutzen. In sich öffnenden Bereichen sind Stehbesprecher platziert. Die jeweils individuelle Raumzonierung wird durch die Metallrasterdecke aufgegriffen. Sie folgt exakt dem Grundriss mit seinen jeweiligen Versprüngen, zeigt die Laufzonen an und gibt der Raumachse Dynamik. Eine Lichtwand am Ende der Achse setzt einen visuellen Fokuspunkt. Die metallische Oberfläche der Decke reflektiert das Licht von außen und zieht es in den Raum hinein. Durch ein aufgelegtes Akustikflies verbessert sie zugleich die Raumakustik.
Mit dem neuen Bürogebäude für Schlaich Bergermann und Partner wird eine neue Kommunikationskultur und Arbeitswelt im Unternehmen etabliert. Die differenzierten Kommunikationsbereiche orientieren sich an den unterschiedlichen Bedürfnissen für die jeweilige Gesprächssituation. Variierende Grundrisse in den Arbeitsetagen lassen abwechslungsreiche Bürolandschaften entstehen. Während die blickoffenen Einzelbüros immer Teil des Gesamtraums bleiben, separieren Kreuzmöbel die offenen Bereiche in einzelne Einheiten, die eine konzentrierte Arbeitsatmosphäre ermöglichen.
Kunde
sbp GmbH
Fläche
2500 m2
Team
Peter Ippolito, Gunter Fleitz, Tilla Goldberg, Christian Kirschenmann Jakub Pakula, Stefanie Maurer, Sherief Sabet, Markus Schmidt, Daniela Schröder
- Ano
- 2011






