Bürogebäude SAB
Berlin, Duitsland
Das Bürogebäude SAB befindet sich eingebettet in das Areal der historischen Königstadt Brauerei im Berliner Ortsteil Prenzlauer Berg direkt an der von Jugendstil- und Gründerzeit-Architektur geprägten Saarbrücker Straße. Das Grundstück liegt direkt an der markanten Höhenkante der Barnimhochfläche und steigt von der Saarbrücker Straße aus in den Blockinnenbereich um rund zwei Meter an. Das neue Gebäude besetzt die freie Ecke der Straße und der in den weitläufigen Gewerbehof führenden Privatstraße.
Seit rund 100 Jahren wird auf dem Gelände der ehemals größten Brauerei Berlins kein Bier mehr gebraut. Nach wechselvoller Geschichte unterliegen die Gebäude heute einer Mischnutzung durch Kiezinitiativen, Medienfirmen, Gastronomie und Start-Up-Unternehmen. Das denkmalgeschützte Gewerbehofensemble der Brauerei Königstadt AG geht auf die bereits 1849 gegründete „Wagner’s Bairisch-Bier-Brauerei“ zurück und besteht heute aus sechs historischen Gebäuden, die den Büroneubau umrahmen: Das ehemalige Lagerhaus des Industriedenkmals aus dem Jahr 1872 grenzt unmittelbar an SAB. Der ehemalige, teils freigelegte Gewölbekeller, der als Bier-Lagerraum genutzt wurde, blieb erhalten und wurde in den Neubau sensibel integriert.
Konzept
Der Stahlbetonskelettbau mit fünf Ober- und zwei Untergeschossen ruht auf einem massiven, im wilden Klinkerverband verblendeten Sockel, der Materialität und Farbigkeit der umgebenden Industriebauten aufgreift und gleichzeitig neu interpretiert. Der Sockel folgt der straßenseitigen Bebauungsgrenze. Die aufgehenden Geschosse sind rückversetzt und um rund 15 Grad gedreht und lassen den Blick auf die im hinteren Grundstücksbereich befindlichen denkmalgeschützten Brauereigebäude frei. Rings um die freigestellten oberen Geschosse ist der Sockelbereich zur Saarbrücker Straße als großzügige, teilbegrünte Terrassenfläche gestaltet.
Die Fassaden der ersten bis fünften Obergeschosse bestehen aus sägezahnartig geschuppten, bodentiefen Fenstern in einem dunkel gehaltenen Aluminium-Rahmenwerk. Die Torsion der aufgehenden Geschosse mit unterschiedlich orientierter Schuppung der Fassade und alternierend ausgreifenden doppelgeschossigen Erkern unterstreicht die sichtbeziehungsstärkende Drehungsfigur des oberen Gebäudeteils. Die Drehung sowie der Rücksprung der Gebäudevolumen schaffen eine gewisse Leichtigkeit und würdigen durch die entstehenden Sichtachsen den Gebäudebestand. Je nach Perspektive spiegeln sich die historischen Fassadenfronten der gegenüberliegenden Straßenseite in den Fensterfronten, ein kalkuliertes optisches Spiel, das den Neubau in einer visuellen Liaison aus alt und neu als harmonischen Bestandteil einer gewachsenen historischen Zeile erscheinen lässt.
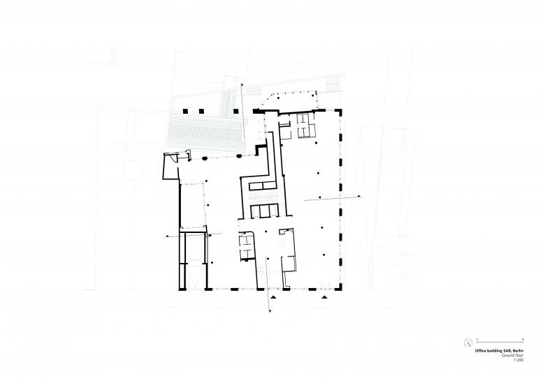
Durch die Bebauung des ansteigenden Grundstückes schneidet das Erdgeschoss um eine halbe Geschosshöhe in das Gelände ein und bildet hofwärts eine teils von den aufgehenden Geschossen überkragte Freifläche aus, in die wie eine historische Ruine der freigelegte Gewölberücken des unterirdischen Bierkellers integriert ist. Zwei erdgeschossige Konferenzräume sind zu diesem besonderen Außenbereich orientiert. Ein weiterer, deutlich kleinerer und allseitig gefasster eingesunkener Hof ist zwischen dem Neubau und dem Nachbargebäude in der Saarbrücker Straße in den Sockel eingetieft und belichtet einen weiteren, im Sockelmassiv gelegenen Besprechungsraum.
Das Gebäude bietet flexibel Raum für 400 Arbeitsplätze in Single- oder Multi-Tenant-Nutzung. Im Erdgeschoss befindet sich ein Konferenzzentrum mit zentralem Foyer und japanischem Garten.
Das Dach des Gebäudes ist begrünt, die dort befindlichen Technikaufbauten sind in die Dachfläche eingetieft, so dass sie auch aus den Obergeschossen der Nachbargebäude nicht wahrgenommen werden.
In den zwei Untergeschossen befinden sich Fahrrad- und Autostellplätze, Sanitärräume für Radfahrer und E-Ladestationen sowie diverse Technik- und Lagerräume.
- Architecten
- TCHOBAN VOSS Architekten
- Jaar
- 2024
- Klant
- N.D.C Projektentwicklung GmbH
- Team
- Philipp Bauer, Kenan Ozan, Valeria Kashirina, René Hoch, Puk Paludan, Manel Reig Florensa, Azzurra Pippia
- Generalunternehmer
- OTTO WULFF Bauunternehmung GmbH, Berlin
- Projektsteuerung
- N.D.C Projektentwicklung GmbH / AO Berlin - Architektur und Organisation mbB, Berlin
- Lichtplanung
- jack be nimble Lichtplaner & Ingenieure, Berlin
- Statik
- Dr.-Ing. Pelle Ingenieurgesellschaft mbH, Berlin
- Haustechnik
- IGS INGENIEURE GmbH & Co. KG / Dipl.-Ing. Markus Szameitat, Falkensee
- Fassade
- Metallbau Windeck GmbH, Kloster Lenin
- Brandschutzkonzept
- hhpberlin Ingenieure für Brandschutz GmbH, Berlin
- Klinker
- hhpberlin Ingenieure für Brandschutz GmbH, Berlin
- Fotograf
- HG Esch
Gerelateerde projecten
Magazine
-
-
-
-
Un despatx madrileny signa un visionari catalitzador urbà en West Palm Beach
Andrea Pala | 29.11.2018 -
L'arquitectura de Francis Keré en escena en el Museu ICO de Madrid
Andrea Pala | 28.10.2018





















