Wienerwald
1955 gründete Friedrich Jahn in München sein Wienerwald-Restaurant, aus dem in den folgenden Jahrzehnten die gleichnamige Kette mit Filialen in 18 Ländern entstand. Das Unternehmen wurde in Folge des Zusammenbruchs des Konzerns durch verschiedene Eigentümer geführt, bis 2007 die Enkel der Gründerfamilie die Rechte an der Marke zurückerwarben. Ihr Ziel ist es, die lange Tradition des Unternehmens, die Stärke der Marke und Einmaligkeit des systemgastronomischen Konzepts weiter auszubauen. Unser Studio erhielt den Auftrag, eine neue Corporate Architecture zu entwickeln, die bereits in zwei Münchner Filialen umgesetzt wurde.
Wienerwald überarbeitet neben der räumlichen Darstellung auch das kulinarische Angebot. Zentrales Element in der Küche bleibt das Hendl mit seinem von Natur aus fettarmen Fleisch. Um sich stärker im Bereich gesunder Frischeküche zu positionieren werden Chopped Salads als zweites zentrales Angebot eingeführt.
Das neue Restaurantdesign unterstreicht die Neuausrichtung der Marke und übersetzt traditionelle Kompetenzen wie Gemütlichkeit, Qualität und deutsche Küche in eine zeitgemäße Formen- und Materialsprache. Material- und Farbauswahl greifen die Aspekte Frische und Natürlichkeit auf, die ihren Ausdruck in Materialien wie Holz, Leder und Textil sowie den, neben dem Weiß, dominierenden Grüntönen finden. Als Akzentfarbe kommt Gold zum Einsatz, das Wertigkeit assoziiert und natürlich in der goldfarbenen Kruste des Hauptprodukts dem Grillhendl, seine Entsprechung findet.
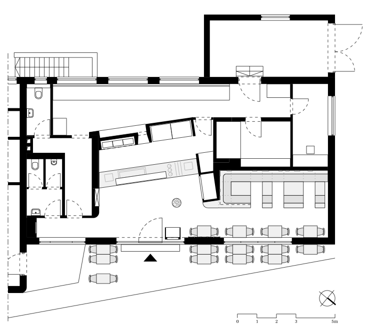
Die Raumorganisation berücksichtigt sowohl die für ein Self-Service-Restaurant wichtige Besucherführung, als auch den Wunsch nach einem differenzierten Angebot an Aufenthaltsmöglichkeiten. Beim Betreten des Restaurants wird der Gast direkt zum frontal dazu angeordneten Tresen geleitet, der sich als klar strukturierte, monolithische Einheit präsentiert. Über dem Tresen visualisieren Menuboards die Speiseauswahl. Das Angebot ist parallel dazu auch real erlebbar: Eine indirekt ausgeleuchtete Nische in der rückwärtigen Wand zum Tresen präsentiert die Salatauswahl, während sich daneben die Grill-Hendl drehen. Die Wand ist mit anthrazitfarbenen Mosaiksteinen verkleidet, in die Edelstahl-Einbauten präzise und rahmenlos eingelassen sind und so Wertigkeit und Qualität der Produkte unterstreichen. Dazwischen markiert ein grüner Leuchtpfeil die Durchreiche zur Küche, in der Bratgerichte zubereitet werden.
Bestell- und Bezahlterminal markieren die beiden Enden des aus weißem Mineralwerkstoff gefertigten Tresens. In der Mitte befindet sich die sogenannte Chopping-Station. Hier werden nach dem Bestellen vor den Augen der Gäste Salate zerkleinert, die Hähnchen portioniert und Toppings aus den daneben eingelassenen Behältern zugegeben. Neben dem Bezahlterminal werden in einer Kühlvitrine Getränke und Nachtisch angeboten. Durch eine im Tresenbereich integrierte Zu- und Abluft bleibt das Restaurant geruchsfrei.
Vor dem Tresen offeriert eine Servicestation aus weißem Mineralwerkstoff Soßen, Gewürze und Besteck. Diese steht auf goldenen Hühnerbeinen und schaut wartend in Richtung Eingang. Im durchgehenden Boden in rustikaler Holzoptik weisen in Wienerwaldgrün eingelassene Hähnchen und Hinweise dem Kunden den Weg durch den Bestellprozess.
Im Gastraum gibt es ein differenziertes Platzangebote für unterschiedliche Bedürfnisse. Für Gäste mit wenig Zeit stehen Steh- und Hochtische aus weißem Mineralwerkstoff zur Verfügung. Den Fuß dieser Tischelemente bildet ein konisch zulaufender Zylinder, eine Reminiszenz an den traditionell gedrechselten Tischfuß. Alternativ dazu bietet sich eine lange, mit braunem Kunstleder gepolsterte Sitzgruppe an, die aus den Wienerwald-typischen Sitznischen abgeleitet ist. Der Gast wird hier tatsächlich in den „Wienerwald“ entführt. An der Rückwand zitieren sägeraue, reliefartig angeordnete Eichenholz-Paneele das Thema Wald. In diese eingelassen sind kreisrunde Spiegel, auf denen Outline-Grafiken von Baum- und Waldmotiven aufgedruckt sind. Über den Tischen schweben vertikal versetzte, unterschiedlich große Pendelleuchten. Diese sind mit einem grobgewebtem Textil in drei verschiedenen Grüntönen bespannt und sorgen für eine angenehme Atmosphäre. Waldgrafiken finden sich auch auf einer Seitenwand, hier als Tapete in verschiedenen Grüntonen ausgeführt, und als Folie auf der Fensterfront. Der Blick von außen in das Restaurant wird so zu einer vielschichtigen Inszenierung, in der sich die einzelnen Elemente auf den Spiegel- und Glasoberflächen reflektieren und überlagern und das Eintauchen in die Welt der Marke zum Erlebnis wird.
Dem Unternehmen Wienerwald und seiner Tradition widmet sich eine Inszenierung aus Wandtellern die in 14 Motiven die Geschichte der Marke in Erinnerung rufen. So würdigt sie den Gründervater Friedrich oder zeigt ein Foto des ersten Restaurants.
Das neue Restaurantdesign repositioniert Wienerwald als zeitgemäße Systemgastronomie. Traditionelle Elemente der Marke werden dabei aufgegriffen, in moderne Raumelemente übersetzt und durch spannende Brüche mit einem Augenzwinkern inszeniert.
Client
Wienerwald Franchise GmbH
Size
125 sqm
Team
Peter Ippolito, Gunter Fleitz, Moritz Köhler, Tim Lessmann, Bartlomiej Pluskota, Yuan Peng
General Contractor
Riedl Messe-/Laden- & Objektbau GmbH, Pfaffingen
- Jaar
- 2010






