weissraum Zahnarztpraxis
Die Zahnarztpraxis von Dr. Matthias Fiebiger ist eine Neugründung in dem durch Altbauquartiere geprägten Münchener Stadtteil Neuhausen-Nymphenburg. Ippolito Fleitz Group wurde gemeinsam mit Skalecki Marketing & Kommunikation beauftragt, für die Praxis die Innenräume zu gestalten sowie ein Naming und die visuelle Kommunikation als integrierten Auftritt zu entwickeln. Ziel war es dabei, der zahnästhetischen und ‑chirurgischen Spezialisierung wie auch der Funktion als "Zahnarzt um die Ecke" gerecht zu werden.
Mit dem neu gefundenen Namen »weissraum« werden beide Patientenzielgruppen angesprochen. »weissraum« steht für die hohe Qualität der zahnmedizinischen Leistungen, assoziiert Reinheit und natürliche Schönheit und unterstreicht das Vertrauensverhältnis zwischen Patient und Arzt. Weiß steht aber auch für das Ideal eines gesunden Zahns. Die zu erreichen ist Ziel und Versprechen der Praxis. Denn selbst das perfekte Abbild eines gesunden Zahns lässt den Patienten wieder selbstbewusst Lächeln.
Die Praxis bezieht die Belle Étage eines Jugendstilwohnhauses, die beeindruckende Raumhöhen und prächtige Stuckornamentik kennzeichnen. Bei der Innenarchitektur war es einerseits Aufgabe, den historischen Baubestand mit Respekt und Sorgfalt zu behandeln und trotzdem den Anforderungen einer modernen Praxis gerecht zu werden. Andererseits sollte eine innenarchitektonische Übersetzung des Begriffs »weissraum« gefunden werden. Beim Betreten der Praxis wird »weissraum« zunächst auch als weiße Architektur sichtbar. Alle Wände und Decken erstrahlen in Weiß. Auch die neuen Einbauten sind durchgehend in der namengebenden Farbe gehalten und werden lediglich durch wenige goldene Flächen akzentuiert, die Wertigkeit assoziieren. Diese Einbauten ziehen sich als durchgehendes Band durch die gesamte Praxis, vom Treppenabgang entlang des Flurs bis in den Wartebereich hinein. Als weiteres raumübergreifendes Thema fungiert der Boden, der als durchgehendes Eichenparkett ausgeführt ist. Dieses ist ebenfalls geweißt und erhält dadurch einen leichten, schwebenden Charakter. Gleichzeitig gibt der Boden den Räumen eine besondere Natürlichkeit, die die häufig mit der Farbe Weiß assoziierten Eigenschaften Künstlichkeit und Sterilität gar nicht erst aufkommen lassen.
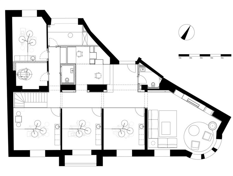
Für die Praxis wurde der Grundriss der ehemaligen Wohnung neu organisiert. Den einstigen Flur füllt jetzt eine Einheit aus Empfang und Mitarbeiter-WC, an der sich, unterbrochen durch einen Stichflur, der Röntgenraum sowie ein drittes Behandlungszimmer anschließen.
Den Wandverlauf, der vormals den Flur von der Flucht der Wohnräume trennte, ersetzen nun rechtwinklige Einbauten, die sich klar und präzise von der markanten historischen Decke absetzen. Sie formulieren die eine Seite des neu geschaffenen Flurs, der durch vertikale Lichtstreifen rhythmisiert wird. Die gegenüberliegende Seite bespielen ein Prophylaxe- sowie zwei Behandlungseinheiten. Dafür wurden die ehemaligen Zimmer mit einer durchgehenden Ganzglasfassade durchschnitten, die diese nun in Behandlungsräume und Flur neu aufteilen. Die Glasfront folgt dabei mit höchster Präzision den Konturen der Stuckdecke. Auf das Glas ist ein Spiegelraster als Verlauf aufgedruckt, die auf der nach innen gerichteten Seite punktgenau mit weißem Lack überdruckt wurden. Das Punktraster verdichtet sich in der Mitte und löst sich nach unten und oben vollständig auf. Das Geschehen in den Praxisräumen bleibt somit diskret hinter der spiegelnden Fläche des mittleren Bereichs im Verborgenen, die den Flur zudem optisch vergrößert. Die herrlichen Stuckornamente und der Boden bleiben dabei von außen weiterhin durchgehend sichtbar, was dem gesamten Raum einen fließenden Charakter verleiht. Für akustische Diskretion in den Behandlungsräumen sorgt die vergoldete HPL-Rückwand der Behandlungszeile: Hinter dem als Lochbohrung ausgeführten floralen Motiv verbirgt sich ein schwarzes Fließ.
An die Behandlungsräume schließt sich der Warteraum im Salon, dem schönsten Raum der Wohnung, an. Weiße Vorhänge filtern hier das Tageslicht, während die Sitzecke in Violett einen effektvollen farblichen Akzent setzt und dem Raum ein loungeartiges Ambiente verleiht. Der Raum kann außerdem für Schulungen genutzt werden. Für Personal-, Gipslabor- und Sterilraum wurde weiterhin das Souterrain erschlossen, in das von der Praxisetage eine Treppe hinab führt.
Die Praxis Weissraum zeigt eine klare moderne Innenarchitektur, die gleichzeitig natürlich und warm wirkt und die historische Bausubstanz auf besondere Weise berücksichtigt. Obwohl die Räume scheinbar durchsichtig erscheinen, wird Wert auf höchste Diskretion gelegt und so möglichen Schwellenängsten der Patienten entgegengewirkt.
Kunde
Dr. med. dent. Matthias Fiebiger
Fläche
208 m²
Team
Peter Ippolito, Gunter Fleitz, Sherief Sabet, Axel Knapp, Frank Faßmer, Liang Lin AMIng, Skalecki Marketing & Kommunikation, Frankfurt
Generalauftragnehmer
Riedl Messe-/Laden- & Objektbau GmbH, Pfaffingen
- Jaar
- 2010




