Berkersheimer Grundschule

In den Gräben, Frankfurt, 德国
照片 © Constantin Meyer

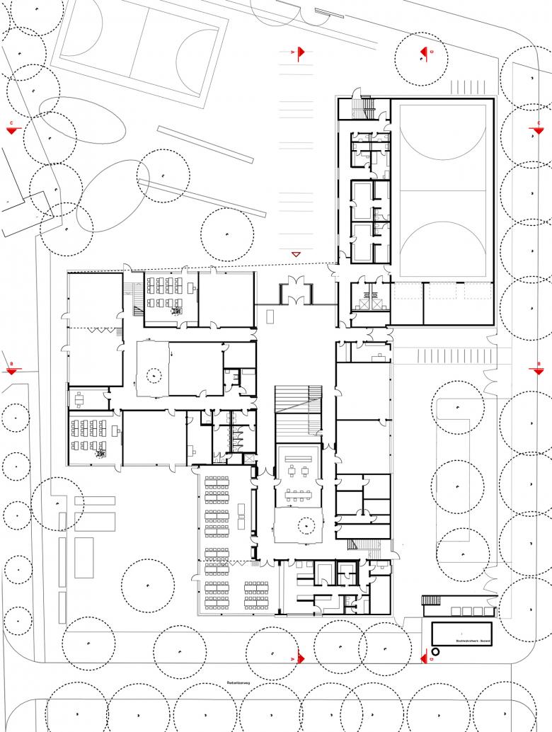
Die neue Schule wird als zweigeschossiger Baukörper mittig auf dem Grundstück platziert. Sie ist als dreizügige Grundschule mit Sporthalle für ca. 300 Schülerinnen und Schüler konzipiert, bei der das Thema Inklusion im Vordergrund steht. Die differenzierte Großform definiert unterschiedliche nutzbare Freibereiche als Schulhof, Gartenhof und Anlieferhof.

Die Erschließung erfolgt von Norden her über den Schulhof. Ein klar ablesbarer überdachter Zugangsbereich führt in das Herzstück der Schule, die zentrale Pausenhalle. Sie kann sowohl zu Pausenzwecken, als auch für Schulveranstaltungen mit mehr als 200 Personen als Versammlungsraum genutzt werden. Eine großzügige Treppenanlage mit Sitzstufen verbindet die beiden Geschosse und kann als ‚Sitzlandschaft’ vielfältig bespielt werden. Von dieser gemeinsamen Mitte aus erreicht man unmittelbar die einzelnen Cluster, die um kleine Innenhöfe herum organisiert sind.

Als Pilotprojekt der Stadt Frankfurt werden die Cluster nach Passivhausstandard gedämmt und mit zwei unterschiedlichen Lüftungssystemen ausgestattet. Der südliche Cluster wird mechanisch be- und entlüftet. Der westliche Cluster wird ­dagegen über ein ausgeklügeltes System von Öffnungsflügeln und flurseitigen Schächten vollständig natürlich (quer-) belüftet. In einem Monitoring sollen Erkenntnisse über die nachhaltige Wirtschaftlichkeit gewonnen werden.

照片 © Constantin Meyer
照片 © Constantin Meyer
照片 © Constantin Meyer
照片 © Constantin Meyer
照片 © Constantin Meyer
照片 © Constantin Meyer
图片 © v-architekten
图纸 © v-architekten
图纸 © v-architekten
年份
2019

以下出品方的其他项目 v-architekten 

Zweiburgenschule Weinheim
Weinheim, 德国
Neubau der Psychiatrie
Tauberbischofsheim, 德国
Bundeswehrfachschule
Karlsruhe, 德国
Neubau Allgemeines Verfügungszentrum Uni Siegen
Siegen, 德国
Gemeindezentrum Haus der Kirche
Köln, 德国