Seminar- und Bürogebäude Hochschule der Medien
Die Hochschule der Medien (HdM) kann sich über ein weiteres Büro- und Hörsaalgebäude auf dem Campus der Universität Stuttgart-Vaihingen freuen. Nach zweijähriger Bauzeit wurde der vom Stuttgarter Büro Simon Freie Architekten konzipierte Erweiterungsbau am 21. Oktober feierlich eingeweiht, genutzt wird er von den Lehrenden und Studenten bereits seit Beginn des Sommersemesters im März 2016.
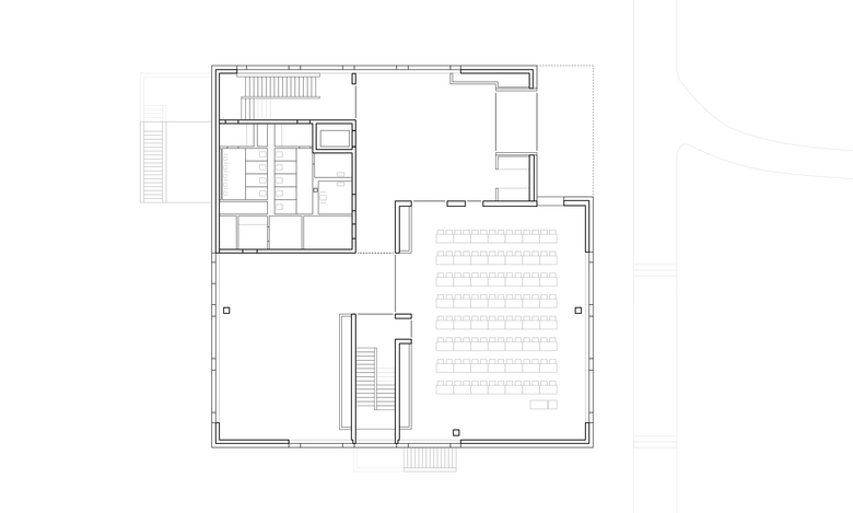
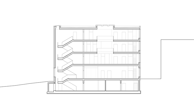
Der als Solitär angelegte, viergeschossige Kubus bietet der stark wachsenden Hochschule rund 1.850 Quadratmeter an zusätzlicher Fläche und damit eine dringend notwendige räumliche Entlastung. Neben großzügig gestalteten Seminar- und Projekträumen beherbergt er unter anderem einen Hörsaal, ein Fotostudio, das Weiterbildungszentrum und ein sogenanntes „creativity lab“, das multifunktional genutzt werden kann. Über einen westlich vorgelagerten Freibereich, der sich auch als „green classroom“ anbietet, wird auf attraktive Weise ein Außenbezug hergestellt.
Neben der prägnanten Würfelform zeichnet das neue Lehrgebäude eine schlichte, zeitlose Eleganz aus. Seine geschlossenen Fassaden sind tragend ausgebildet und bestehen aus Fertigbeton-Sandwichelementen. Transparenz schaffen die markanten, großformatigen Fensteröffnungen mit einheitlichen Abmessungen, die zugleich für eine lichte, freundliche Lernatmosphäre sorgen. Die großen Verglasungen fungieren als Schaufenster im Sinne des Wortes – weite Ausblicke in die Umgebung sind ebenso möglich wie fragmentarische Einblicke in innere Abläufe. Breite, gepolsterte Sitzbänke in den Fensternischen bieten als sogenannte „chill areas“ Rückzugsräume und Ruhezonen.
Architekt Christof Simon legte Wert auf eine größtmögliche Flexibilität und Offenheit des Gebäudes und berücksichtigte dabei auch die sich verändernden Raumbedürfnisse einer Hochschule. Die Wände der Seminar-, Projekt- und Büroräume sind in nichttragender Trockenbauweise erstellt, dies erlaubt ihre nachträgliche Veränderung und Anpassung. Im Erdgeschoss können durch flexible Glaswände verschiedene Bereiche zu einer Fläche zusammengeschaltet werden.
In den Obergeschossen gruppieren sich die Räume jeweils um einen zentralen Kommunikations- und Aufenthaltsbereich, der über Durchbrüche in den Geschoßdecken und eine Dachverglasung sowie die Lage an der Nordfassade natürlich belüftet und belichtet wird. Deckendurchbrüche sowie transparente Türelemente mit Seitenverglasungen ermöglichen einen Sichtbezug sowie die Kommunikation zwischen den Geschossen ebenso wie zwischen den einzelnen Räumen. (da)
(Aus dem Baunetz-Newsletter 05.12.2016)
- Project Status
- 设计









