The Soaring Rock
Deolali, 印度
HOMES, celebrate LIFE.
They celebrate views, geographies, locales, climates…..
The emotion one feels on arrival at the crest of the site is of liberation, an expanse.
The same emotion is distilled through the placement of the 4 ton rock that soars on the prong of a 6 meter cantilever……
The home predominantly faces the farmlands, a reservoir and the highlands in the distance, witness to the most color saturated sunsets.
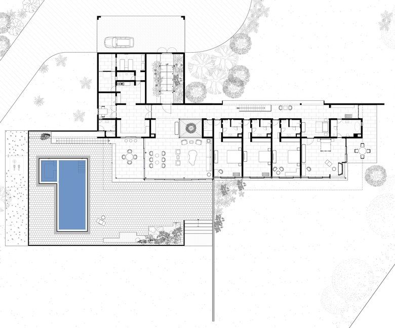
Living spaces are framed between two simple planes, framing the views as cleanly as possible.
Another plane slips a bit under to become a terracotta terrace and pool plane….
Horizontal lines echo the nature of the PANORAMA.
Stating more would be a waste.
- 年份
- 2018
相关项目
杂志
-
-
-
-
Un despatx madrileny signa un visionari catalitzador urbà en West Palm Beach
Andrea Pala | 29.11.2018 -
L'arquitectura de Francis Keré en escena en el Museu ICO de Madrid
Andrea Pala | 28.10.2018

































