Tallage Alt-Saarbrücken
Saarbrücken, 德国
Städtebaulich - freiraumplanerischer Ideenwettbewerb
mit Latz und Partner, Kranzberg und Schweitzer Ingenieure, Saarbrücken
2017, 1.Preis
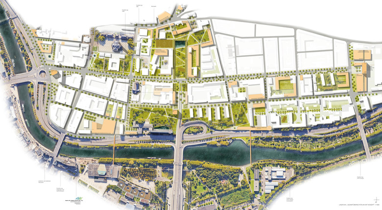
BRACHE ALS CHANCE
Die über Jahrzehnte konservierten, innerstädtischen Brachflächen sind wertvolles Kapital für eine Revitalisierung des Stadtteils. Es fehlt nicht viel, um aus der Heterogenität eine eigene Identität mit großen Qualitäten und Stärken zur Entfaltung zu bringen.
Durch Nachverdichtung seiner Flächenreserven bietet der Standort attraktive Flächenangebote zur Aufnahme von Einrichtungen der Bildung, der Kultur, der Wirtschaft, der Verwaltung und des Wohnens.
Von der dynamischen Entwicklung Alt-Saarbrückens zum Hochschul- und Wissenschaftsstandort gehen starke Impulse zur Aktivierung der Pontentialflächen im Westen der Tallage aus.
BRÜCKEN BAUEN
Die städtebaulichen Probleme Alt-Saarbrückens lassen sich nicht allein im Quartier selbst lösen – es lohnt der Blick über die Saar.
Zwei neue Brücken verbinden rechtes und linkes Saarufer: Messesteg und Campussteg. Die Flussquerung wird städtebauliches Leitmotiv.
So gelingt nicht nur die Anbindung des Stadtteils an die Saarauen, sondern auch das Vernetzen mit den benachbarten Quartieren und ein zusammenhängender, flussübergreifender Grünraum-Parcours beidseitig der Saar - Bürgerpark 2.0.
Durch vielfältiges Verweben profitieren auch die benachbarten Quartiere St. Johann und Malstatt. Die Stadt rückt zum Fluss.
DAS BLECH MUSS WEG
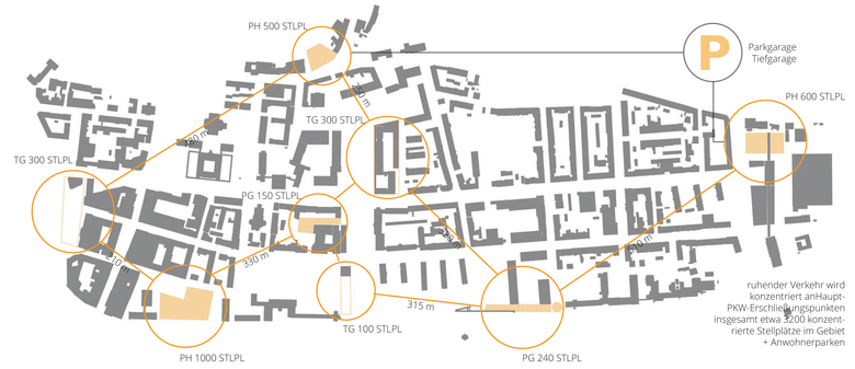
Die stadtraumverträgliche und praxistaugliche Lenkung des suchenden und ruhenden Verkehrs ist Voraussetzung aller städtebaulichen Interventionen. Parkhäuser an der Peripherie fangen den Parksuchverkehr vor dem Eindringen ins Quartier in fußläufiger Entfernung von Ausbildungsstätten und Arbeitsplätzen ab.
Zentrale Parkhäuser, Quartiersgaragen und konsequentes Anwohnerparken entlasten die Nachbarschaft und ermöglichen Nachverdichtung bei gleichzeitiger Aufwertung des öffentlichen Raumes. In unmittelbarer Nähe zum Roonpark entsteht anstelle des Eichamtes eine Tiefgarage (350 Plätze) als Basis der aufgesattelten Wohnbebauung.
STADTTORE UND BOULEVARDS
Repräsentative Plätze und signifikante bauliche Hochpunkte prägen als Haupteingänge ein neues, progressives Bild des Quartiers: Alt-Saarbrücken, ein Stadtteil des 21. Jahrhunderts.
SAAR-BOULEVARD MIT NEUMARKT
Der Rückbau der Auffahrt zur A 620 Richtung Mannheim schafft Raum für die Verschwenkung und Aufwertung der Hochwasserumfahrt zum Saar-Boulevard mit Zweirichtungsverkehr. Der verletzte Stadtrand wird geheilt, die kompakte Kontur der Stadt wiedergewonnen. Der nun durch Südverschwenkung der Stengelstraße vom Verkehr entlastete und klar zonierte Neumarkt erfährt eine Neuinterpretation als spannungsvolle, urbane Platzfolge. Neu bebaut erhält der südliche Neumarkt eine klare räumliche Fassung und Proportionierung.
HEUDUCK-BOULEVARD
Mit Stengelturm, Stengelpassage und Stengelplatz findet die breite, sonnenbeschienene Nordseite des Heuduck-Boulevards Auftakt und Thema, mit dem Platz und HTW-Tower im Osten seinen Abschluss.
Zwischen diesen Quartierseingängen spannt sich der Boulevard auf, dessen unterschiedliche Zonen durch die Kontinuität von Baumstellungen, Belagsmotiven und Ausstattung zusammengebunden werden.
Der, homogenen, linearen Baumstellung der schattigen Südseite antwortet die Nordseite mit der freien Anordnung von Baumgruppen unterschiedlicher Arten.
Außerhalb der Knotenpunktbereiche wird die Stengel- bzw. Heuduckstraße auf jeweils eine Fahrspur in jede Fahrtrichtung konsolidiert. Durch die Verengung des Fahrbahnquerschnittes wird neuer Raum für Parkstände, Radverkehrsanlagen und Aufenthaltsräume gewonnen (Multizonen). Die Parkplätze werden beidseitig als Längsparkstände, die Fahrradinfrastruktur als beidseitiger Einrichtungsradweg ausgeführt. Für den ÖPNV werden barrierefreie Fahrbahnrandhaltestellen oder Buscaps realisiert. In den Knotenpunktbereichen werden notwendige Linksabbiegespuren eingerichtet, um weiterhin eine gute Verkehrsqualität für den MIV zu gewährleisten.
Durch die Neugestaltung des Heuduck-Boulevards wird die Parksituation in diesem Bereich Alt-Saarbrückens deutlich verbessert. Des Weiteren steht den Radfahrern eine einheitliche Radverkehrsinfrastruktur entlang des Heuduck-Boulevards zur Verfügung. Die baulich getrennten Radwege bieten unsicheren Radfahrern, eine Möglichkeit sich komfortabel außerhalb der stark frequentierten Straßen zu bewegen.
STAATSKANZLEI UND STENGELPARK
Die Staatskanzlei versteckt sich hinter Maschendraht und Abstandsgrün: Der Sitz der Landesregierung macht sich unsichtbar.
Ein lichter Kranz aus Kolonnaden mit Wegen und Bänken anstelle des Distanzgrüns schafft dezente Repräsentanz bei gleichzeitig klarer Trennung zwischen geschütztem Kanzlei-Garten und öffentlichem Park. Gleichzeitig wird wertvoller Freiraum zurückgewonnen: Der Stengelpark erstreckt sich nun beidseitig der Staatskanzlei als wahrnehmbare und nutzbare Einheit.
MESSE UND CONGRESS ZENTRUM SAAR
Die Brache des Saartoto-Parkplatzes vis-à-vis der Congresshalle bietet die Chance, eine einzigartige, flussübergreifende Messe- und Congresssituation von hoher Präsenz und Sichtbarkeit zu schaffen. Der gedeckte Messesteg verklammert die beiden Saarfer und mündet auf den Messe-Terrassen. Der Bezug zum Flussraum ist allgegenwärtig.
Über einer ohne Infiltration des Quartiers über die Saaruferstraße erschlossenen Tiefgarage (ca. 1.000 Plätze auf drei Ebenen) erhebt sich die Saarmesse auf drei Ebenen (ca. 16.000 BGF auf drei Ebenen).
Im Umfeld entstehen repräsentative Stadträume von hoher Aufenthaltsqualität (Raumfolge Gutenbergplatz / Place Pingusson / Botschafts-Park), von der die Geschäftslagen im Bereich Eisenbahnstraße und die benachbarten Ministerien gleichermaßen profitieren.
PLACE PINGUSSON UND BOTSCHAFTSPARK
Der Botschaftspark erstreckt sich auf ganzer Länge zwischen dem baulich gefassten Place Pingusson im Osten und dem Roonpark im Westen. Er wird weitestgehend der Öffentlichkeit zugänglich gemacht. Sicherheitsrelevante Bereiche können durch Einfriedung und Wassergrenzen abgeschirmt werden. Ein Erweiterungsbau (Ministerien) beschließt die Kepplerstraße, fasst den Platz und schirmt ihn von der Autobahn ab. Durch lückenlosen Schallschutz wird der Botschaftspark zur Ruheinsel. Sensible Einbauten im Bereich der Pilotis (Café / Bistro / Meeting Points) mit Orientierung zur sonnigen Wasserterrasse schirmen zur A 620 ab und erhöhen die Qualität der Arbeitsplätze des Kultusministeriums.
An die Stelle des westlichen Parkplatzes tritt eine erdgedeckte Parkgarage, über der die Topografie sanft und kontinuierlich mit der Auffahrtsrampe der Westspange ansteigt, sodass die Westspange fußläufig unmittelbar im Park mündet.
HANDWERSKAMMER
Der erweiterte Raumbedarf der Handwerkskammer lässt sich ohne Inanspruchnahme des dem Pingusson-Baus vorgelagerten Botschaftsparks realisieren: durch Anbau einer schlanken Hochhausscheibe, in direkter Anbindung an den Bestand, wirtschaftlich durch Nutzung der im Bestand vorhandenen Erschließung und Versorgung, mit repräsentativem und ebenerdigem Zugang vom Roonpark. Die Pappelallee setzt sich in den Kolonnaden des zurückspringenden Erdgeschosses fort.
HOHENZOLLERNSTRAßE
In Höhe Roonplatz wird die Hohenzollernstraße für den motorisierten Verkehr geschlossen und zwischen Kepler- und Gärtnerstraße als Mischverkehrsfläche (Shared Space) ausgebildet. Begünstigt werden: Fußgänger, Radfahrer, Straßengastronomie und familienfreundliches Wohnen (Spielstraße).
ROONPARK
In Nord-Süd-Richtung, zwischen Westspange und Metzer Straße, wird der Roonpark grünes Rückgrat und Entrée des Stadtteils. Die Pappel-Allee bindet als flussübergreifendes Metazeichen beide Saarseiten thematisch zusammen, ordnet und homogenisiert den Raum.
Von der Westspange kommend grüßt der Hochpunkt des Campanile, der im Zusammenspiel mit dem Neubau der Handwerkskammer und der pingusson´schen Hochhausscheibe eine spannungsvolle Komposition bildet.
Der nördliche Roonpark mit seinem Steinteppich, wassergebundenen Flächen und Hainen wird repräsentative Adresse von HWK-Neubau (6.000 m²) , Campanile (Gründerzentrum / Büro / Hotel, 6.000 m²) und der vorhandenen Bildungseinrichtungen. Für die in den Steinteppich integrierten Haltestellen bietet er großzügigen Raum und hohe Aufenthaltsqualität für die Fahrgäste.
Ein Netz aus barrierefreien Fuß- und Radwegen führt in die grüne Mitte. Das Bassin als blaues Gelenk zwischen Sport-, Aktivitäts- und Ruhezonen bildet das atmosphärische Zentrum der ausgedehnten Freiräume des südlichen Roonparks. Differenzierten Zonen und Topografien ermöglichen ein breites, generationenübergreifendes Nutzungsspektrum. Die Pappelallee rahmt Baumgruppen und Solitäre in freier Stellung. Wertvoller Baumbestand wird integriert. Bänke, Sitzstufen und Liegewiesen laden zum Verweilen ein.
Zur Vorstadt-, Deutschherren- und Gärtnerstraße werden die Blockränder geschlossen. Klare Straßen,- Platz- und Grünräume entstehen. Der Erweiterungsbedarf des Wichernhauses und des Evangelischen Kirchenkreises Saar-West sowie der Bedarf nach innerstädtischem Wohnraum bieten hierfür den besten Anlass.
NEUES WOHNEN IN ALT-SAARBRÜCKEN
Im Kontext von Roonpark Heuduckstraße entsteht bezahlbares Wohnen mit unterschiedliche Typologien, wohnungszugehörigen Mietergärten in ruhigen Innenhöfen auf den Dächern von Quartiersgaragen und Gewebeflächen.
Dem linearen Baukörper des Ludwigsgymnasiums wird bei Integration des RZVK-Gebäudes ein geschlossener, städtebaulicher Block gegenübergestellt, der auf einer Tiefgarage (350 Plätze) fußt. In den Kolonnaden des Erdgeschosses sind belebende, parkorientierte Nutzungen wünschenswert (Café, Eisdiele, Außengastronomie). Die Obergeschoße bieten Raum für gewerbliche Nutzungen und bezahlbares Wohnen.
Trotz erhöhter Bebauungsdichte trägt der hohe Grünanteil im Siedlungsinneren und der mögliche Luftaustausch nachhaltig zur Verbesserung der klimatischen Situation der Tallage bei.
Durch die Nähe zu zentralen Geschäftslagen, kulturellen Einrichtungen, Grünanlagen mit Naherholungscharakter und Spiel- und Sportanlagen gewinnt das Quartier einen hohen Freizeit- und Erholungswert. Planungsrechtliche Erleichterungen und Anreizprogramme („Quartiersgaragenplatz für neuen Wohnraum“, „100-Dächer-Programm“ zur Aufstockung von Bestandsbauten, „Baulücken-Programm“ zur Nachverdichtung von Brachen etc.) begünstigen Transformationsprozess der Tallage Alt-Saarbrückens zur bevorzugten Lage
- 年份
- 2017
- Lanschaftarchitekteur / Stadtplanung
- Latz+Partner
- Verkehrsplanung
- Schweitzer Ingenieure
相关项目
杂志
-
-
-
-
Un despatx madrileny signa un visionari catalitzador urbà en West Palm Beach
Andrea Pala | 29.11.2018 -
L'arquitectura de Francis Keré en escena en el Museu ICO de Madrid
Andrea Pala | 28.10.2018












