Helios House
Los Angeles, CA, 美國
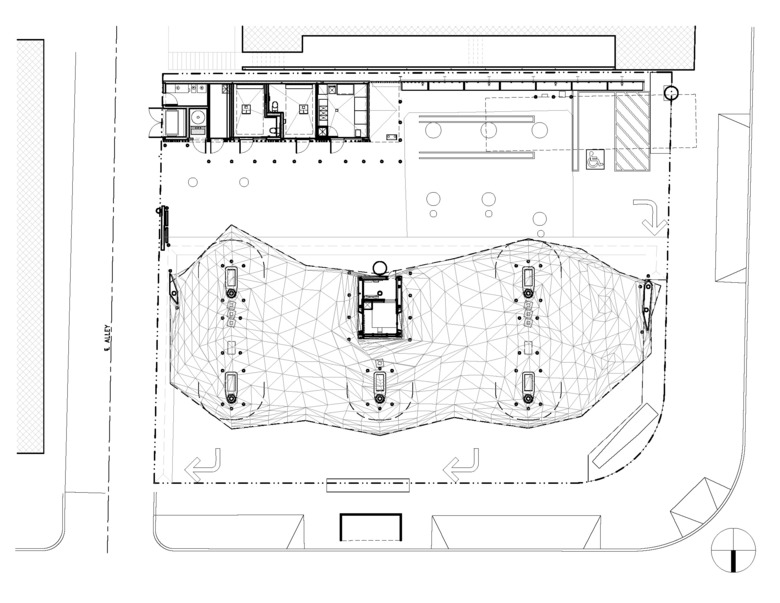
Helios House melds bold design, inventive fabrication, and sustainable building practices to create a design that engages the urban, car-oriented culture of Los Angeles. An important goal of the project was to upgrade the original station in an environmentally conscious manner by “upcycling,” recycling old materials, and installing new materials that are sustainable and recyclable. The water, heat, energy, lighting, and material systems of the station were all built to maximize sustainability and energy efficiencies, including: 90 solar panels covering the canopy’s roof that provide approximately 15,000 kWh of energy to the station– enough electricity to power two to three typical American homes for a year.; energy-efficient lights and sensors throughout; a green roof of native plants on back building; an on-site water collection system that contains the run-off of contaminated water in an underground cistern, filters, and distributes to irrigate plants; 100% recycled glass aggregate in the concrete mixture; as well as prefabricated recyclable stainless steel panels that conserve labor costs and reduce material waste. However, the design of Helios House’s canopy is its most emblematic feature. While conventional gas stations combine functionally distinct elements, this project integrates all of these into one seamless whole to create a signature building.- the pay kiosk, the structure, the fin panels (as signs), and the canopy are all shaped from the same faceted surface.
Credit:
Nader Tehrani- Office dA- NADAAA
- 建筑师
- NADAAA
- 年份
- 2007
相关项目
杂志
-
-
-
-
Un despatx madrileny signa un visionari catalitzador urbà en West Palm Beach
Andrea Pala | 29.11.2018 -
L'arquitectura de Francis Keré en escena en el Museu ICO de Madrid
Andrea Pala | 28.10.2018














