Zahnarztpraxis Dr. P.
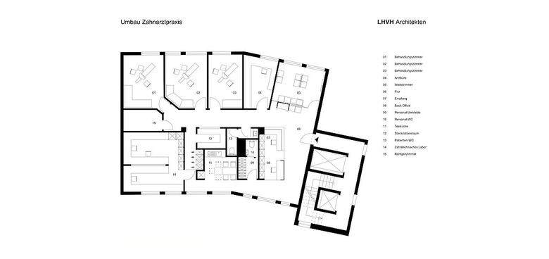
Die 150 qm große bestehende Zahnarztpraxis entsprach sowohl räumlich als auch materialtechnisch nicht mehr den heutigen Anforderungen. Innerhalb von drei Wochen (Praxisurlaub) sollte der Umbau realisiert werden. Auf Grund der zeitlichen Restriktion wurde das Projekt in zwei Schritte unterteilt. Im ersten Schritt wurde der Empfangsbereich, das Wartezimmer, die sanitären Einrichtungen, die Teeküche und der Sterisilationsraum umgebaut. In einem weiteren Schritt werden die Behandlungsräume, das Labor und der Röntgenraum den heutigen Anforderungen angepasst. Die Stahlbeton-Konstruktion des Gebäudes lässt eine hohe Flexibilität der Grundrissgestaltung zu. Diese Freiheit wurde zum Konzept erhoben und alle nicht tragenden Wände abgebrochen. In den Gesprächen mit dem Arzt und dem Praxisteam kristallisierte sich der Wunsch nach einer großen Transparenz bei gleichzeitiger, möglicher Intimität heraus. So wurde ein Kern etabliert, welcher blockhaft in den freien, loftartigen Raum gestellt wurde und von den Verkehrsflächen umspült wird. Dieser Block nimmt die Räume Empfang, Back Office, Personal-Umkleide, Personal-WC, Teeküche, Sterisialtionsraum und Patienten-WC auf. Die Räume Flur, Empfang, Personalbereich fließen ineinander über, es wird keine massive Grenze gesetzt. Das Wartezimmer wurde räumlich an derselben Stelle belassen, wird allerdings nicht mehr durch eine massive Wand geschlossen. Eine raumhohe Glastrennwand mit integriertem Garderobenmöbel lässt eine hohe Transparenz zu und bietet einen Schallschutz. Das Farbkonzept entspricht der reduzierten Formensprache. Der Stahlbeton der Decke wurde wieder hergestellt und zu einem Sichtbeton veredelt. Alle Wände sind glatt gespachtelt und reinweiß gestrichen und bilden somit einen spannenden Kontrast. Der Boden ist ein Vinyl-Belag, in Holzoptik (gekälkte Eiche) gehalten. Dieser fließt in alle Räume und bildet eine "warme" Basis. Sämtliche Möbel sind individuell angefertigt. Die Schränke des Kerns sind mit weissen Schichtstoffplatten und die Möbel des Wartezimmers mit gekälkter Eiche belegt. In den WC-Räumen finden die Patienten in den Wandfliesen das Rot des Praxis-Logos als subtilen "Anker" wieder. Das Lichtkonzept folgt dem Entwurf in konsequenter Weise. So wurde auf jegliche Leuchte in den Verkehrsflächen verzichtet. Der eingestellte Block dient als Lampenschirm und leuchtet die Gänge atmosphärisch aus.
- 年份
- 2011





