Edge Hafencity
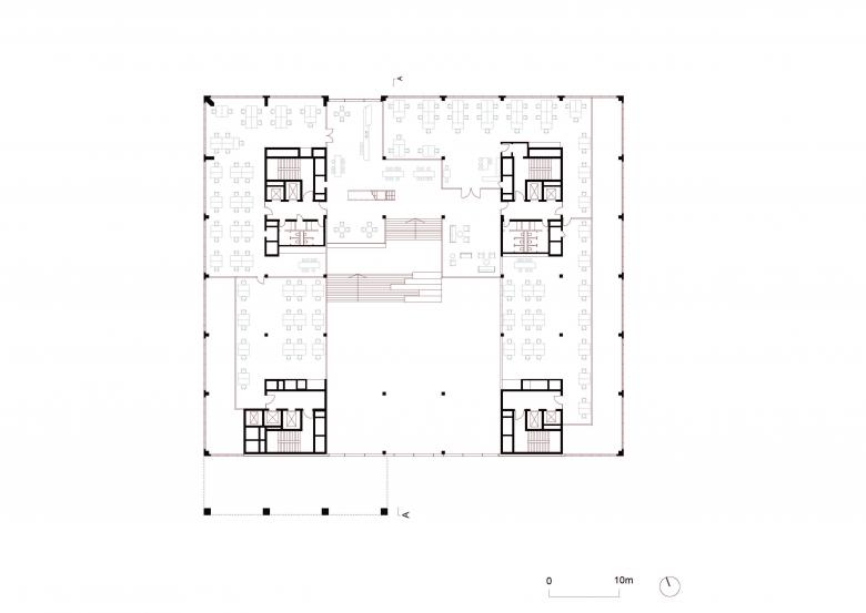
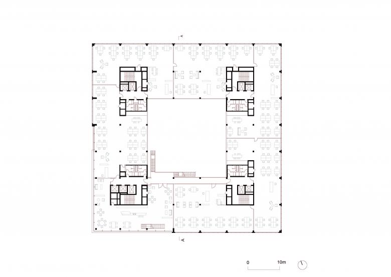
Im Westen der Hamburger HafenCity entwickelt sich aus ehemals industriell genutzten Hafenflächen ein vielfältiges neues Stadtviertel für Wohnen, Arbeiten und Freizeit. Mit dem EDGE HafenCity ist im Elbbrückenquartier nun ein weiterer wichtiger Baustein entstanden. Das energieeffizient geplante Bürogebäude fördert aktiv Interaktion und Kollaboration: Es bringt nicht nur die Menschen zusammen, die hier arbeiten, es öffnet sich auch Gästen und Menschen aus der Nachbarschaft. Der Neubau setzt sich aus zwei Gebäudeteilen zusammen – einem siebengeschossigen quadratischen Baukörper und einem Turm, der diesen mit einer Gesamthöhe von knapp 60 Metern im Südwesten überragt. Mit seinem quadratischen Gebäuderaster lässt sich das in einzelne Büroeinheiten unterteilte Gebäude flexibel nutzen. Zweigeschossige Arkaden und eine stützenfreie acht Meter weite Auskragung markieren den Haupteingang des Gebäudes am Amerigo- Vespucci-Platz. Kommunikatives Herzstück des Neubaus bildet ein zentrales Atrium, das auch für Gäste öffentlich zugänglich ist. Eine offene Treppe windet sich spiralförmig um den zentralen Luftraum und verbindet alle Geschosse miteinander. Auf jeder Ebene entstehen an der Treppe terrassenförmige Plateaus. Der Neubau schreibt so die Gestaltung des umgebenden Platzes mit Treppen und Terrassen im Inneren fort. Das Gebäude ist wie eine kleine Stadt konzipiert, die Raum für Begegnungen und Austausch, gemeinsame Lunch- und Kaffeepausen sowie individuelle Entspannung schafft. Im Erdgeschoss befinden sich Gastronomie- und Konferenzbereiche, in den Obergeschossen die mietbaren Büroflächen mit Zonen für kollaboratives und konzentriertes Arbeiten. Sie stehen allen Mieter*innen als gemeinsame Aufenthaltsbereiche zur Verfügung. Ebenso die umlaufende, üppig bepflanzte Dachterrasse, die der Erholung dient. Über das Atrium und die großformatigen Fenster fällt reichlich Tageslicht in die Innenräume. Es sorgt gemeinsam mit Pflanzen, natürlichen Materialien und vernetzten digitalen Technologien für eine komfortable Atmosphäre – zum Arbeiten und für ein soziales Miteinander. So wie sich das EDGE HafenCity mit seinem offenen und vielfältigen Konzept mit dem sozialen Umfeld vernetzt, fügt sich seine rote Fassade visuell in das städtebauliche Gefüge der östlichen HafenCity ein. Alle Dachflächen des Gebäudes sind als Retentionsdächer ausgebildet und größtenteils intensiv begrünt. Das Turmdach ist mit Photovoltaik-Paneelen zur Stromversorgung ausgestattet. Mit dem EDGE HafenCity ist ein Bürogebäude entstanden, das mit seiner innovativen Arbeitswelt Kollaboration und Kreativität fördert, und zu einem aktiven Baustein des sozialen Gefüges im neuen Elbbrückenquartier wird.
- 年份
- 2025
- Project Status
- 已建造
- 客户
- EDGE Technologies
- 团队
- Daniel Festag, Silke Beckmann, Martin Henn, Marta Arce Gonzalez, Giovanni Betti, Dirk Breuer, Nemanja Crnobrnja, Oliver Franke, Denise Gellinger, Ralph Hempel, Oliver Koch, Peter Lee, Emiliano Lupo, Georg Pichler, Klaus Ransmayr, Anatolii Romanov, Michael Sadomskyj
- Generalplanung
- Bauwens Construction
- Interior Design
- Studio Frick
- Freianlagenplanung
- Atelier Loidl
- Tragwerk
- Wetzel & von Seht
- Technische Gebäudeausrüstung
- ZWP Ingenieur-AG
- Bauphysik
- Müller-BBM
- Brandschutz
- hhpberlin
- Fassade
- KFE – Kucharzak Fassaden Engineering
- Nachhaltigkeit
- atmosgrad°
- WELL Zertifizierung
- Buro Happold



























