Volksschule und Mittelschule Leopold-Kohr-Straße
Transdanubien nennen die WienerInnen die Bezirke nördlich der Donau. Was nach einer Welt jenseits urbaner Entwicklung klingt, ist in Wirklichkeit eine städtebaulich relevante Gegend mit reger Bautätigkeit. Im Stadtteil Kagran, zwischen Gewerbepark, Wohnneubauten und Ostbahn, bildet unsere Volks- und Mittelschule an der Leopold-Kohr-Straße einen neuen Eckpfeiler in der städtischen Entwicklung. Mit einem urbanen Vorplatz sowie Spiel- und Sportflächen, die auch von den BewohnerInnen in der Umgebung genutzt werden können, bereichert die Schule die Nachbarschaft. Die großzügigen, überdachten Gemeinschaftsterrassen verwandeln die Fassade in einen vertikalen Garten und bilden in der Ganztagesschule einen wichtigen, ganzjährig gut nutzbaren Ort für Lern- und Freizeit.
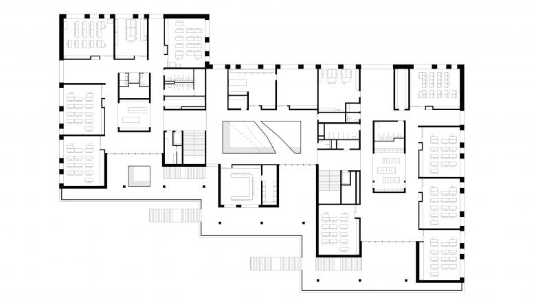
Es braucht nur zwei skulpturale, spiegelnde Brücken in der Mitte der Schule, und diese wird zu einem ganz besonderen Raum, der Lust auf Entdecken und ganz viel Bewegung macht. Dieses zentrale Atrium gibt Orientierung und ist der gemeinsame Treffpunkt in der Schule. Auf allen Ebenen gibt es direkten Zugang zu den großen, vorgelagerten Terrassen. Im Erdgeschoß genießen die Kinder und Jugendlichen beim Mittagessen oder in der Bibliothek durch raumhohe Fenster den Ausblick in den Schulgarten.
Jedes der Bildungscluster ist zirkulär aufgebaut und bekommt von mehreren Seiten Tageslicht. Bildungsräume und offene, multifunktionale Buchten wechseln sich ab. Zusätzlich steht jedem Cluster direkt davor auf der eigenen Terrasse viel gedeckter Freiraum zur Verfügung. Hier können sich die Kinder ihre Lieblingsplätzchen suchen und auch immer wieder Neues an ihrer Schule entdecken. Einschnitte und Öffnungen geben vielfältige Blickbeziehungen zwischen den Ebenen und verbinden diese. Durch die geschoßhohen Stahlseilnetze bleiben die Terrassen gesichert und transparent - im Lauf der Zeit wird wilder Wein daran emporranken. Dahinter prägt naturbelassenes Lärchenholz die Fassade, die durch den Einfluss der Witterung allmählich eine silbergraue Patina erhalten wird.
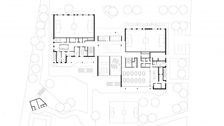
Über große Treppen und eine Rutsche gelangen die SchülerInnen auch von den oberen Ebenen schnell in den Schulgarten. Ein Teil des der Spiel- und Sportflächen ist abends und an Wochenenden frei zugänglich. Der Quartiersplatz vor der Schule ist ein erster Baustein für mehr städtische Aufenthaltsqualität in dem Grätzl. Die beiden abgesenkten Sporthallen, die den Eingang seitlich flankieren, sind außerhalb der Schulzeiten extern nutzbar.
- 年份
- 2023
- Project Status
- 已建造
- 客户
- Stadt Wien
- 团队
- Edin Hadžović, Friederike Dammaß, Anita Bartos, Diana Jarincikova, Leire Azkarate, Thomas Karl, Judith Mayr, Sophie Wiedemann, Johannes Tiefenthaler, Darija Gunitzberger, Kübra Inal, Jonas Kunzelmann
- Statik
- Petz ZT GmbH
- Bauphysik
- IBO
- Gebäudetechnik
- Zencon
- Landschaftsplanung
- EGKK
- Brandschutz
- Hoyer Brandschutz















